Rijksakademie van beeldende kunsten
1985-2012

 

Rijksakademie van beeldende kunsten
1985-2012

 
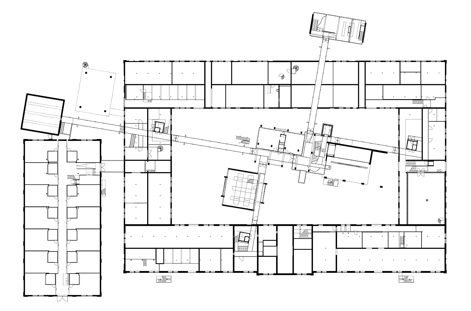
Voor de Rijksakademie van beeldende kunsten in Amsterdam is een voormalige kazerne, een rijksmonument, getransformeerd zonder het bestaande gebouw aan te tasten. Nieuwbouw elementen zijn op de binnenplaats en buiten het complex gesitueerd en daarmee verbonden door middel van luchtbruggen. Het bestaande kazerne gebouw is gerestaureerd en vormt een terughoudende, onopgesmukte achtergrond. Deze achtergrond past bij het karakter van het oorspronkelijke gebouw en

stelt kunstenaars die hier hun atelier hebben in staat zich de ruimte toe te kunnen eigenen. In de nieuwbouw elementen zijn onder meer de kantoren, kantine en de bibliotheek ondergebracht. Binnen de eenheid van het geheel hebben deze functies een uitgesproken karakter en eigen sfeer.

De Rijksakademie was genomineerd voor de European Union Prize for Contemporary Architecture – Mies van der Rohe Award 1992.
 

Rijksakademie
1985-2012

Extra
1 |