Revalidatiecentrum Groot Klimmendaal
1997-2010

 

Revalidatiecentrum Groot Klimmendaal
1997-2010

 
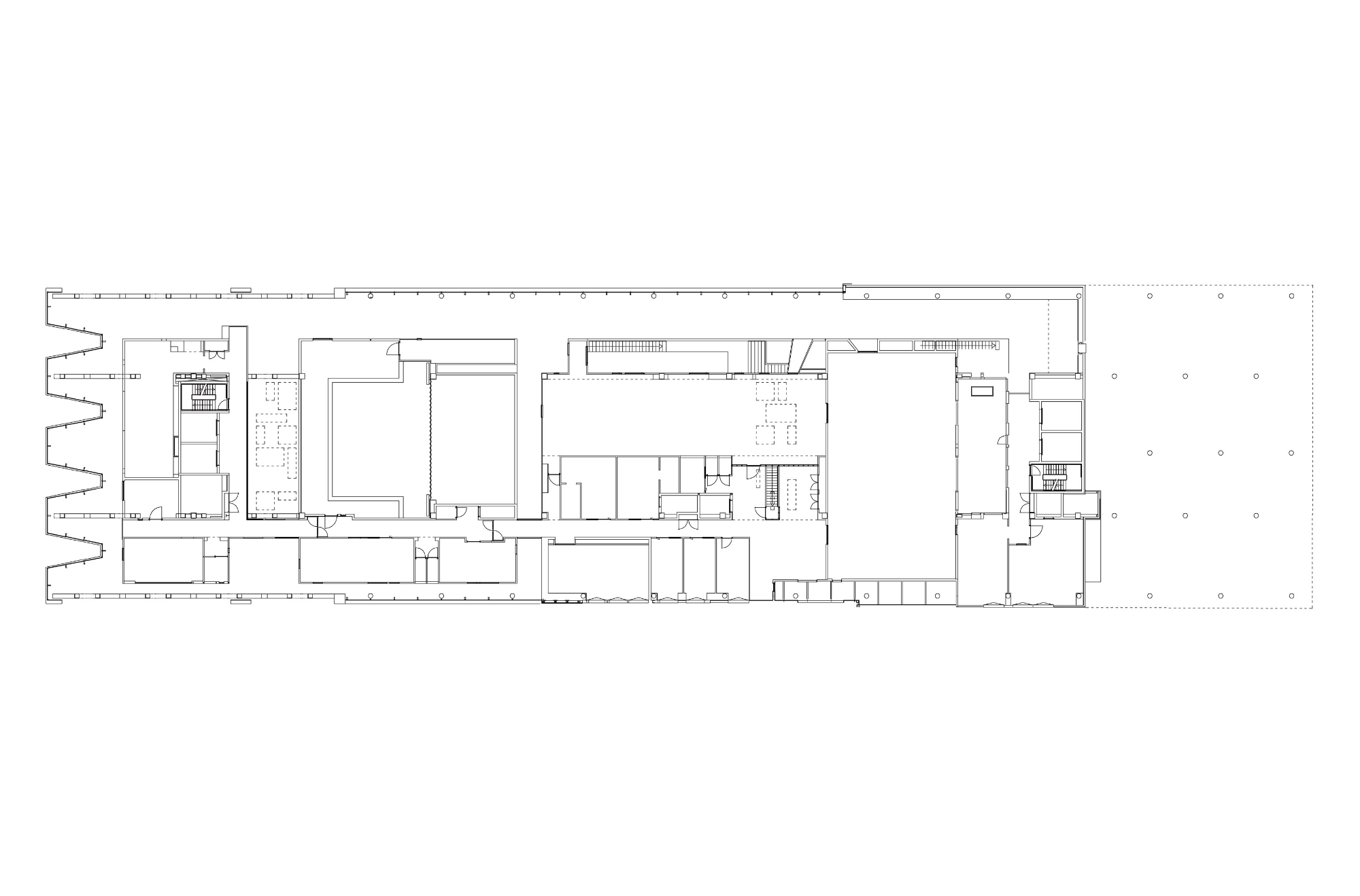
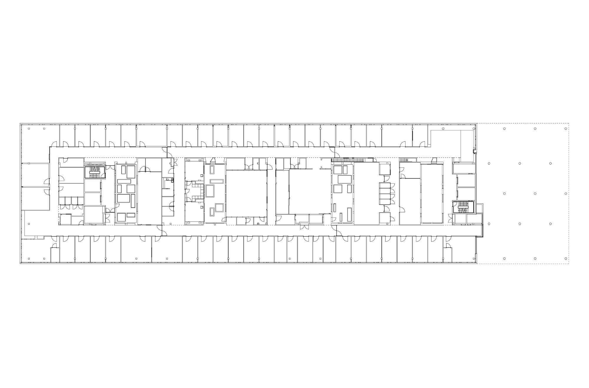
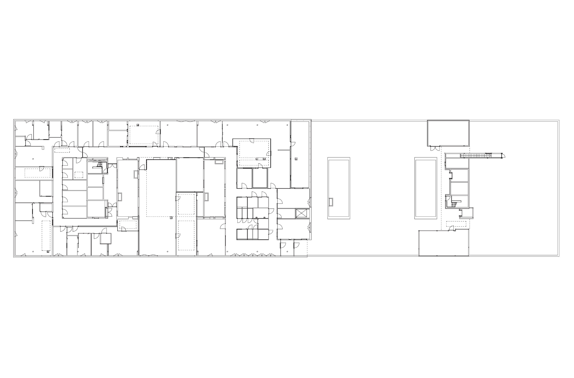
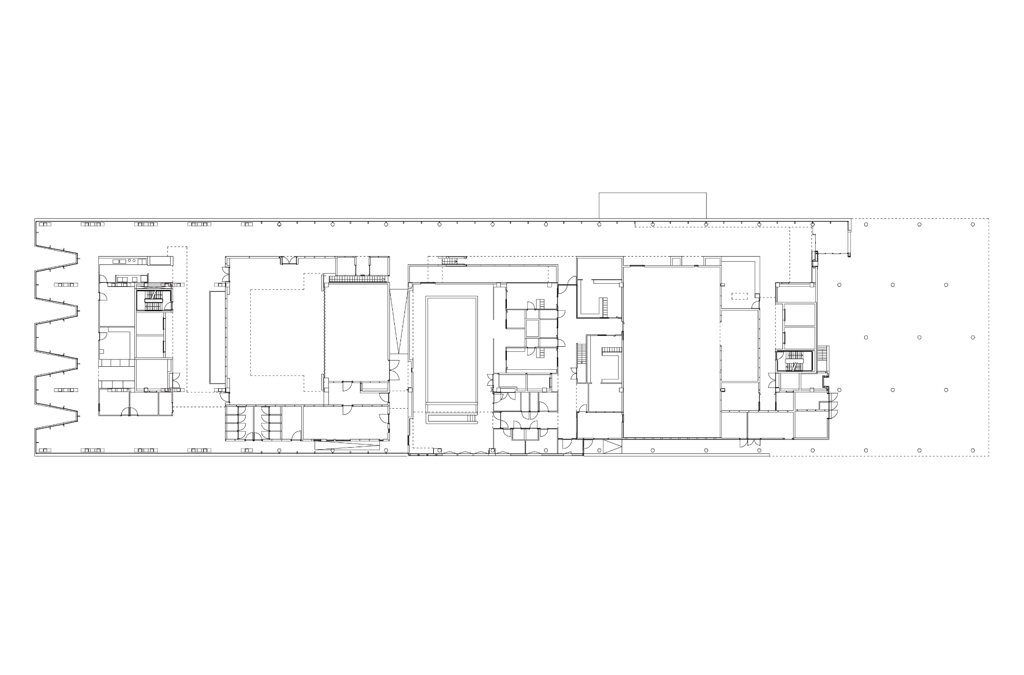
Revalidatiecentrum Groot Klimmendaal is deels een publiek toegankelijk gebouw met een diversiteit aan (zorg)functies. Het bevat een sportcentrum en zwembad, een theater met foyer, een restaurant, een tandartsenpraktijk, een kliniek en polikliniek, appartementen, kantoren en diverse andere voorzieningen. Het gebouw is compact, efficiënt, karaktervol en profiteert optimaal van de groene omgeving. Het heeft bewust geen ‘zorguitstraling’ en is open, transparant en toegankelijk.

Het gebouw en het omringende landschap, beiden ontworpen door Koen van Velsen architecten, markeren de eerste fase van het masterplan. Dit masterplan voorziet in de concentratie van (bestaande) functies in drie
nieuwe compacte gebouwen van hoogwaardige kwaliteit en voorziet tegelijkertijd de transformatie van het terrein tot een groen park voor revalidatie en de omgeving.

Groot Klimmendaal werd in 2010 verkozen tot Gebouw van het Jaar door de Bond van Nederlandse Architecten en tot winnaar van de Heuvelinkprijs van de stad Arnhem, de eerste Hedy d’Anconaprijs voor excellente zorgarchitectuur en de Dutch Design Award publieksprijs. In 2011 werd het gebouw verkozen tot finalist voor de European Union Prize for Contemporary Architecture - Mies van der Rohe Award en verkozen tot het beste ‘health’ gebouw van de wereld tijdens het World Architecture Festival.
 

Revalidatiecentrum
1997-2010


1 |