Revalidatiecentrum Groot Klimmendaal
1997-2010

 

Revalidatiecentrum Groot Klimmendaal
1997-2010

 
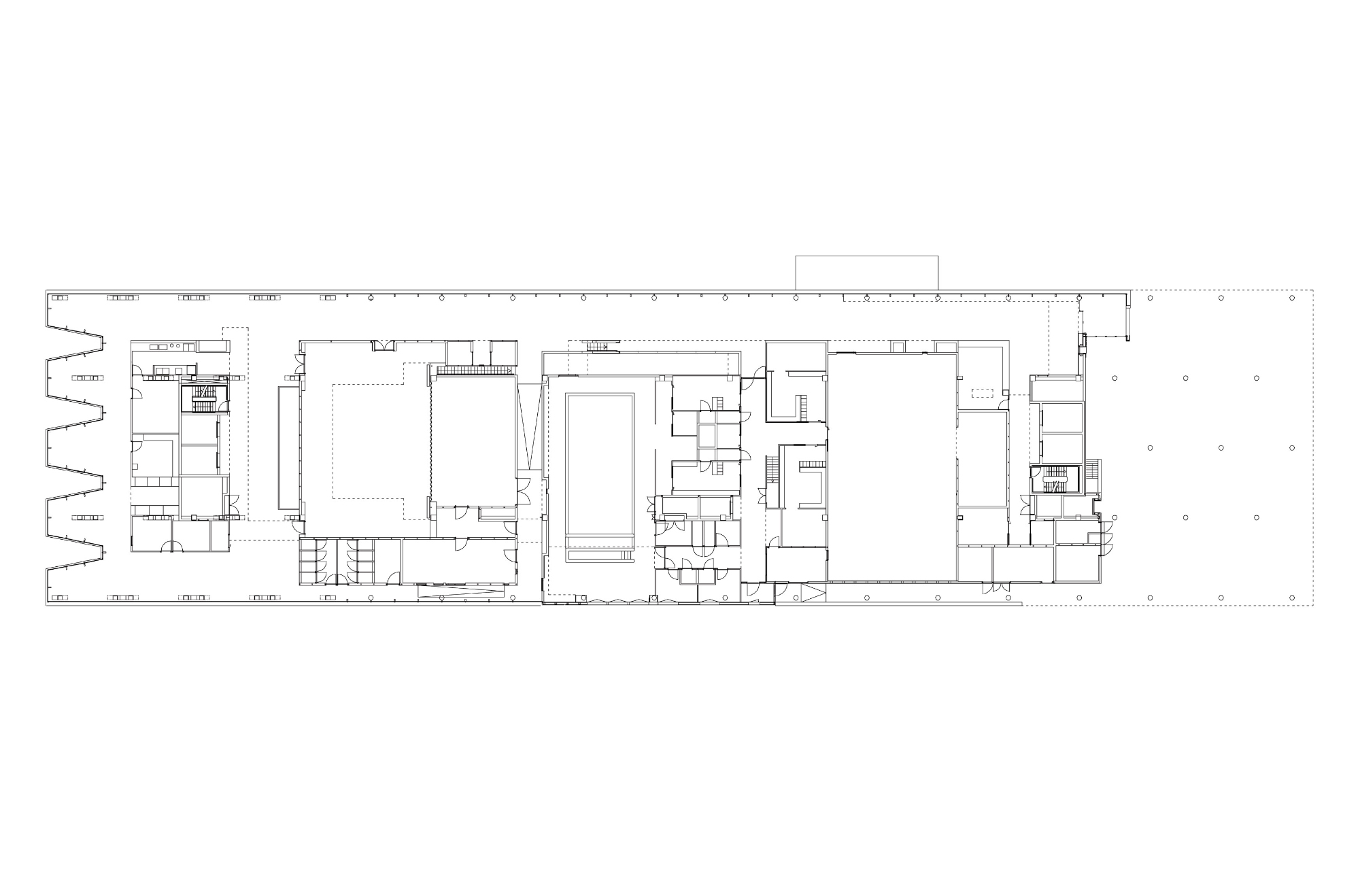
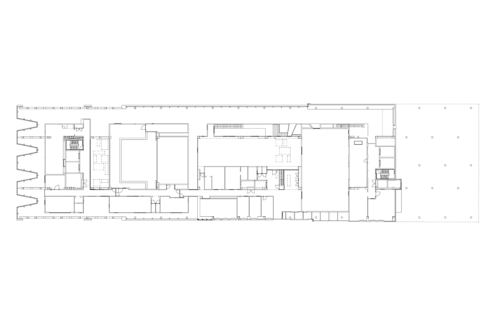
Revalidatiecentrum Groot Klimmendaal is deels een publiek toegankelijk gebouw met een diversiteit aan functies. Het gebouw bevat onder meer een theaterzaal met foyer, expositieruimte en een restaurant.

De zaal is kwalitatief hoogwaardig, onder meer op het vlak van akoestiek, afwerking, uitstraling en functionaliteit. De zaal maakt een belangrijk onderdeel uit van de revalidatie. In de zaal kunnen mensen met en zonder lichamelijke beperkingen optimaal samenwerken en kan recht worden gedaan aan de doelstelling van maatschappelijke participatie. Naast therapie wordt de zaal ook gebruikt voor theater, (film)voorstellingen en muziek voor en door de lokale gemeenschap. Hierdoor is een levendig gebouw gerealiseerd met een échte meerwaarde voor de omgeving. De theaterzaal is in twee delen te scheiden, bevat een verplaatsbare tribune en is op diverse manieren ontsloten.
Hierdoor zijn beide zaaldelen onafhankelijk van elkaar te gebruiken ten behoeve van voorstellingen, vergaderingen of exposities. Daarbij heeft de verkeerszone tussen de zaal en het restaurant een bijzondere uitstraling waardoor deze als foyer kan fungeren en een vanzelfsprekende overgang bewerkstelligt tussen de theaterzaal en het restaurant.

Groot Klimmendaal werd in 2010 verkozen tot Gebouw van het Jaar door de Bond van Nederlandse Architecten en tot winnaar van de Heuvelinkprijs van de stad Arnhem, de eerste Hedy d’Anconaprijs voor excellente zorgarchitectuur en de Dutch Design Award publieksprijs. In 2011 werd het gebouw verkozen tot finalist voor de European Union Prize for Contemporary Architecture - Mies van der Rohe Award en verkozen tot het beste ‘health’ gebouw van de wereld tijdens het World Architecture Festival.
 

Revalidatiecentrum
1997-2010


1 |