Ontvangstgebouw Paleis het Loo
2007-2011

 

Ontvangstgebouw Paleis het Loo
2007-2011

 

Het ontvangstgebouw voor Paleis Het Loo is bewust een eigentijds gebouw met ‘ingetogen allure’ als toevoeging aan de collectie van aanwezige Rijksmonumenten en landschapstuinen. Samen vormen ze het Nationaal Museum. Het gebouw vormt een duidelijke beëindiging van de as van en naar het Paleis en is daarmee verbonden door middel van een plein. Het ontvangstgebouw fungeert als scharnierpunt tussen het Paleis en het Paleispark met de assen, de parkeerplaats en het Kroondomein. Het gebouw is duidelijk zichtbaar vanaf het parkeerterrein en presenteert zich aan de bezoeker als het gezicht van het museum.

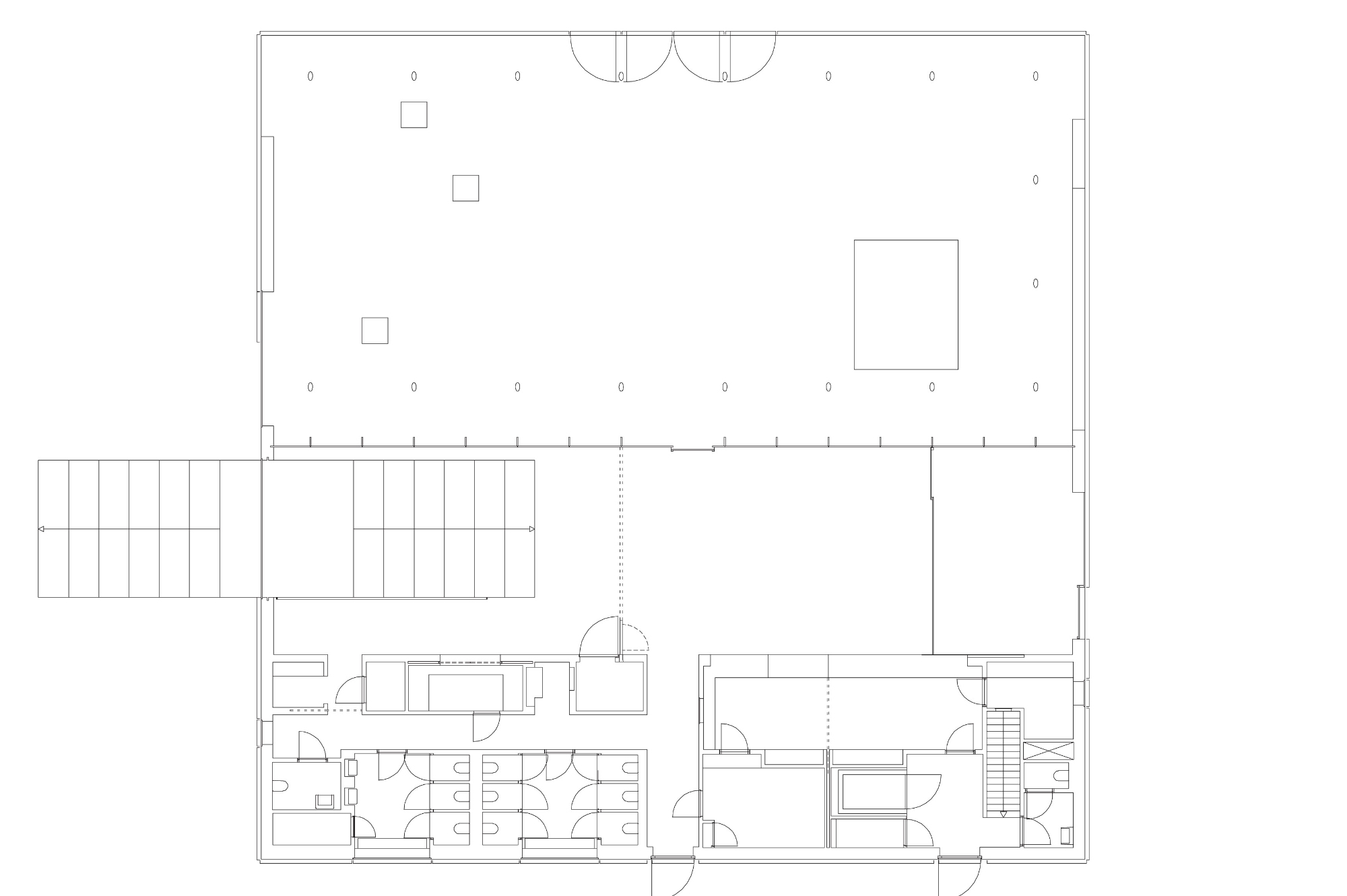
Het gebouw bevat een ontvangstruimte met faciliteiten voor kaartverkoop,

een museumwinkel, een multifunctionele publiekszaal, garderobe, bar, tentoonstellingsruimte, kantoor, sanitaire voorzieningen en verblijfsvoorzieningen ten behoeve van groepenontvangst. Ook bevat het gebouw een (ondergronds) depot voor de opslag en conservering van de kostuumcollectie van het museum.

Koen van Velsen architecten ontwierp het ontvangstgebouw inclusief de vaste inrichting en de nieuwe landschapstuin die het ontvangstgebouw verbindt met het historische stallencomplex. Het ontvangstgebouw werd verkozen tot winnaar van de architectuurprijs Apeldoorn, ontving een eervolle vermelding in de verkiezing BNA Gebouw van het Jaar en was genomineerd voor de European Union Prize for Contemporary Architecture - Mies van der Rohe Award 2013.
 

Ontvangstgebouw
2007-2011

Extra
1 |