Kantoorgebouw CvdM
1998-2001

 

Kantoorgebouw CvdM
1998-2001

 
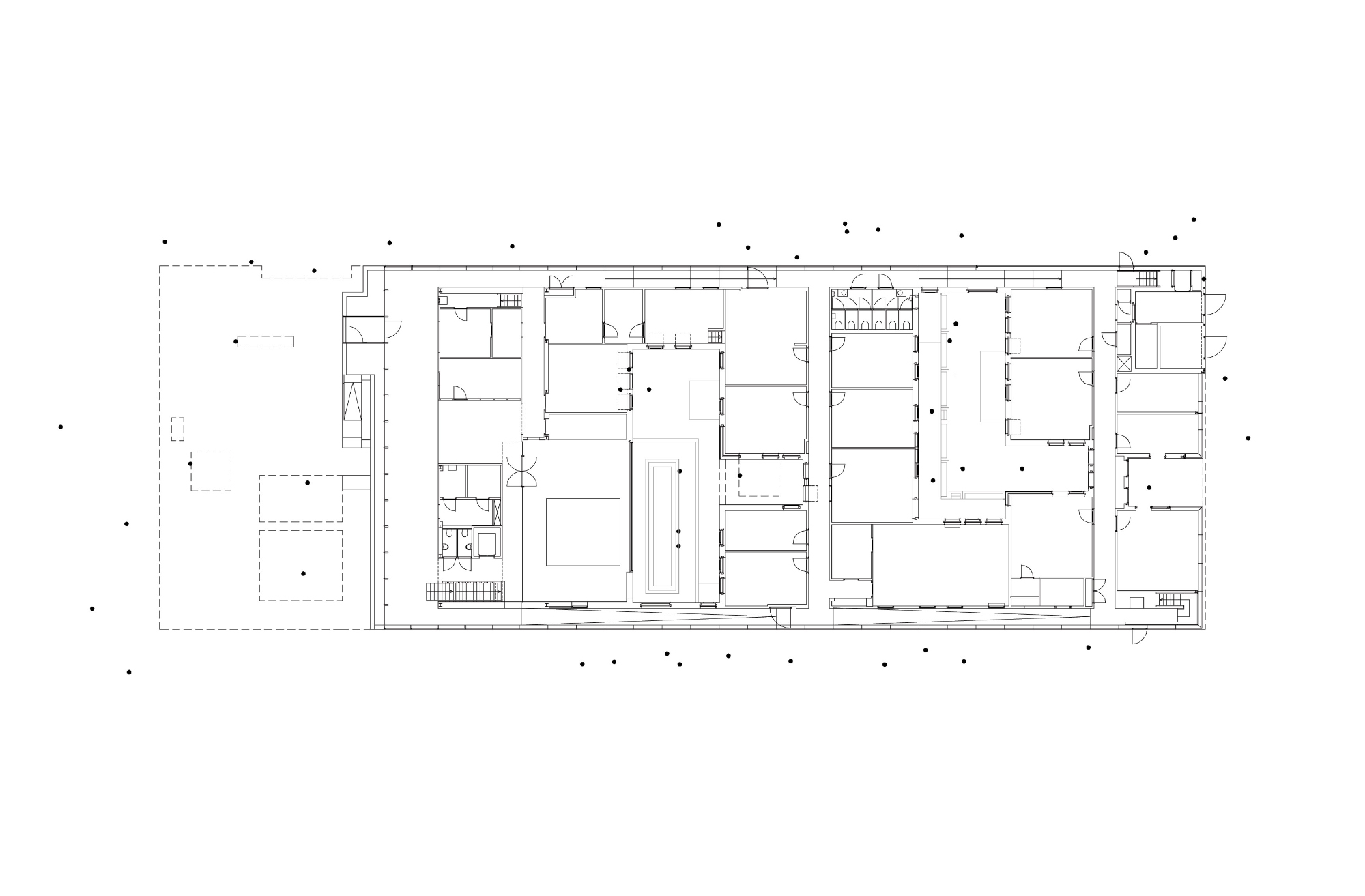
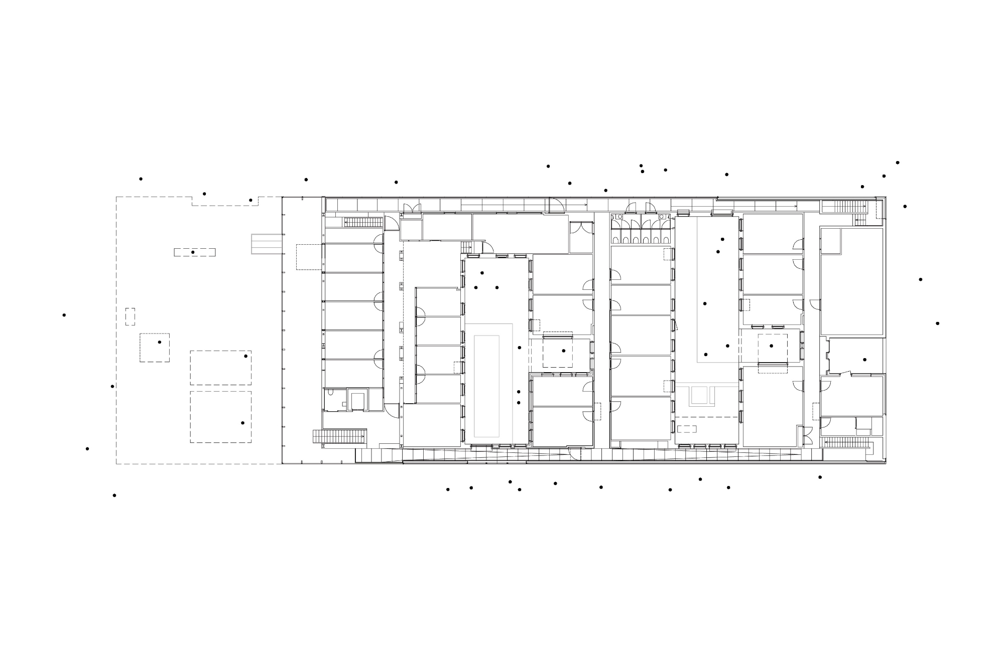
Het kantoorgebouw voor het Commissariaat voor de Media is gesitueerd aan de rand van Hilversum, op een locatie waar stad en natuur elkaar ontmoeten. De manier waarop het gebouw omgaat met deze overgang en de weloverwogen materiaalkeuzes en detaillering resulteren in een transparant kantoorgebouw met een prettige sfeer van rust en comfort.

Het karakter van de bestaande locatie, de relatie tussen het gebouw en de groene omgeving en de relatie van de gebruikers van het gebouw met het landschap vormen de belangrijkste thema’s van het ontwerp. Het gebouw is ontworpen om de bestaande en nieuwe bomen heen. De daklijn van het langgerekte bouwvolume volgt de, vanaf de

straat naar beneden aflopende, contour van het terrein. De verkeersruimten van het gebouw bevinden zich langs beide glazen gevels. De werkruimtes in het hart van het gebouw zijn gesitueerd rond de patio´s waardoor iedere ruimte direct zicht heeft op licht, lucht en natuur. De patiogevels zijn, in tegenstelling tot de strakke buitengevels van glas en metaal, gedifferentieerd gecomponeerd met verspringende ramen metselwerk gevelvlakken en verschillende kleurvlakken.

Het kantoorgebouw voor het Commissariaat voor de Media was geselecteerd voor de European Union Prize for Contemporary Architecture - Mies van der Rohe Award 2003.
 

Kantoorgebouw
1998-2001


1 |