Koen van Velsen architect
Menu
Selectie projecten
Alle projecten
Profiel
Prijzen en Awards
Bibliografie
Contactgegevens
Credits
English
Menu
Projecten
Koen van Velsen
Contact
Selectie projecten
Alle projecten
English
Up
Down
Left
Right
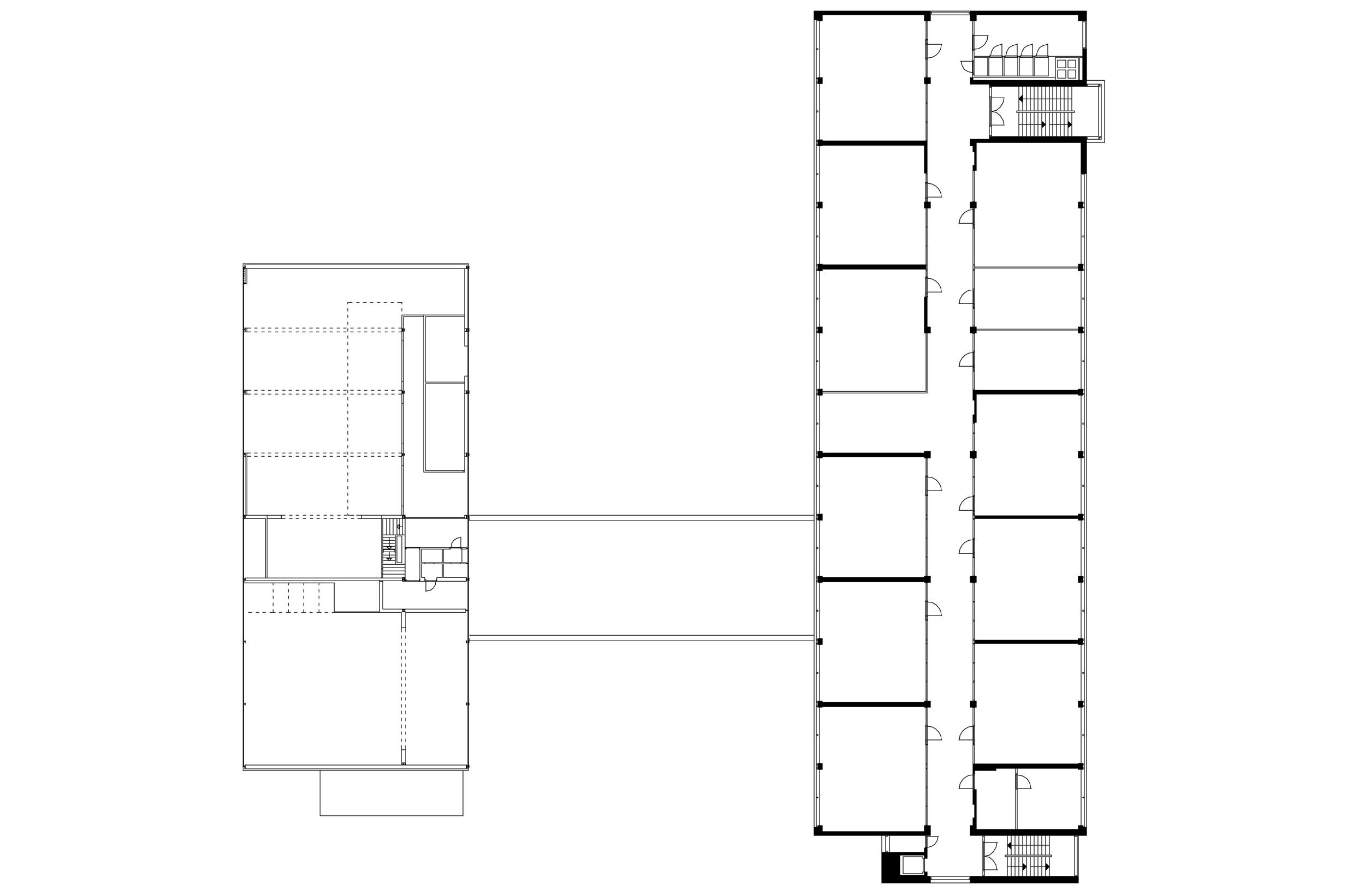
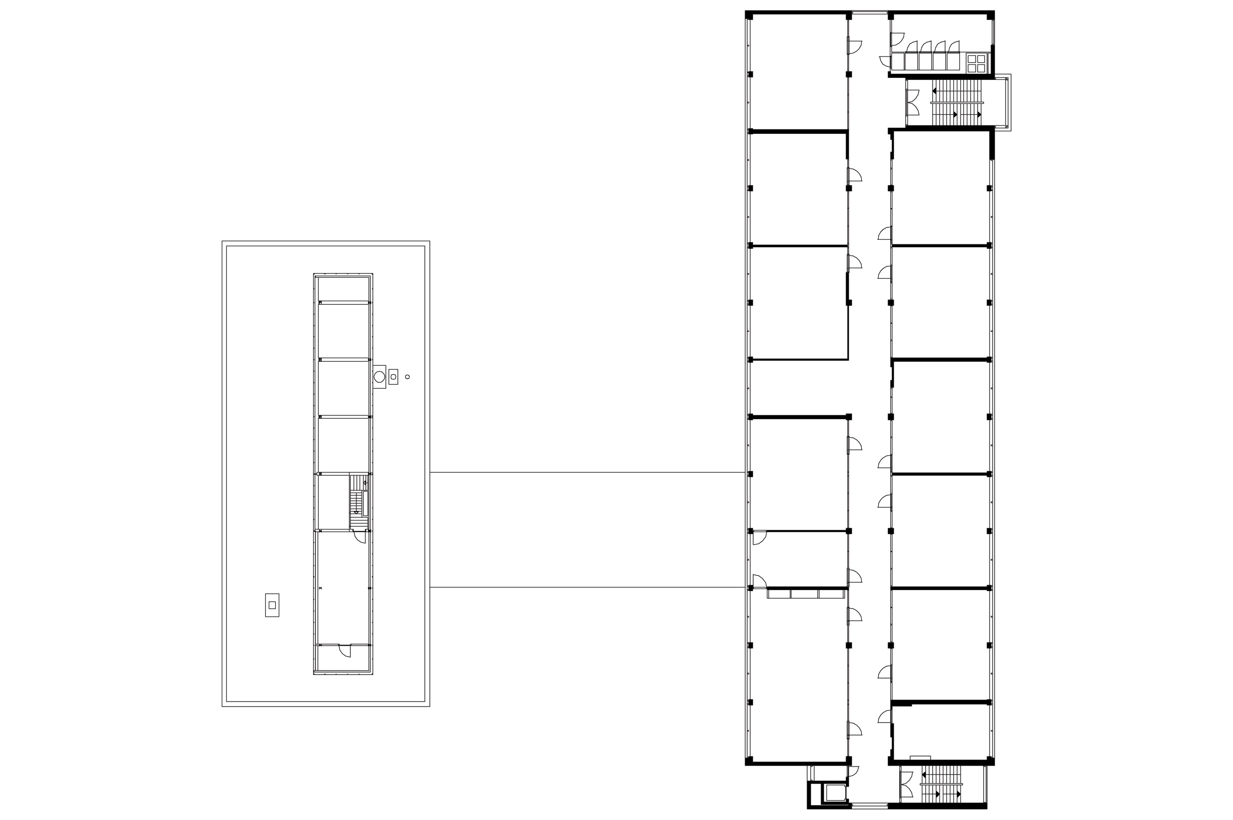
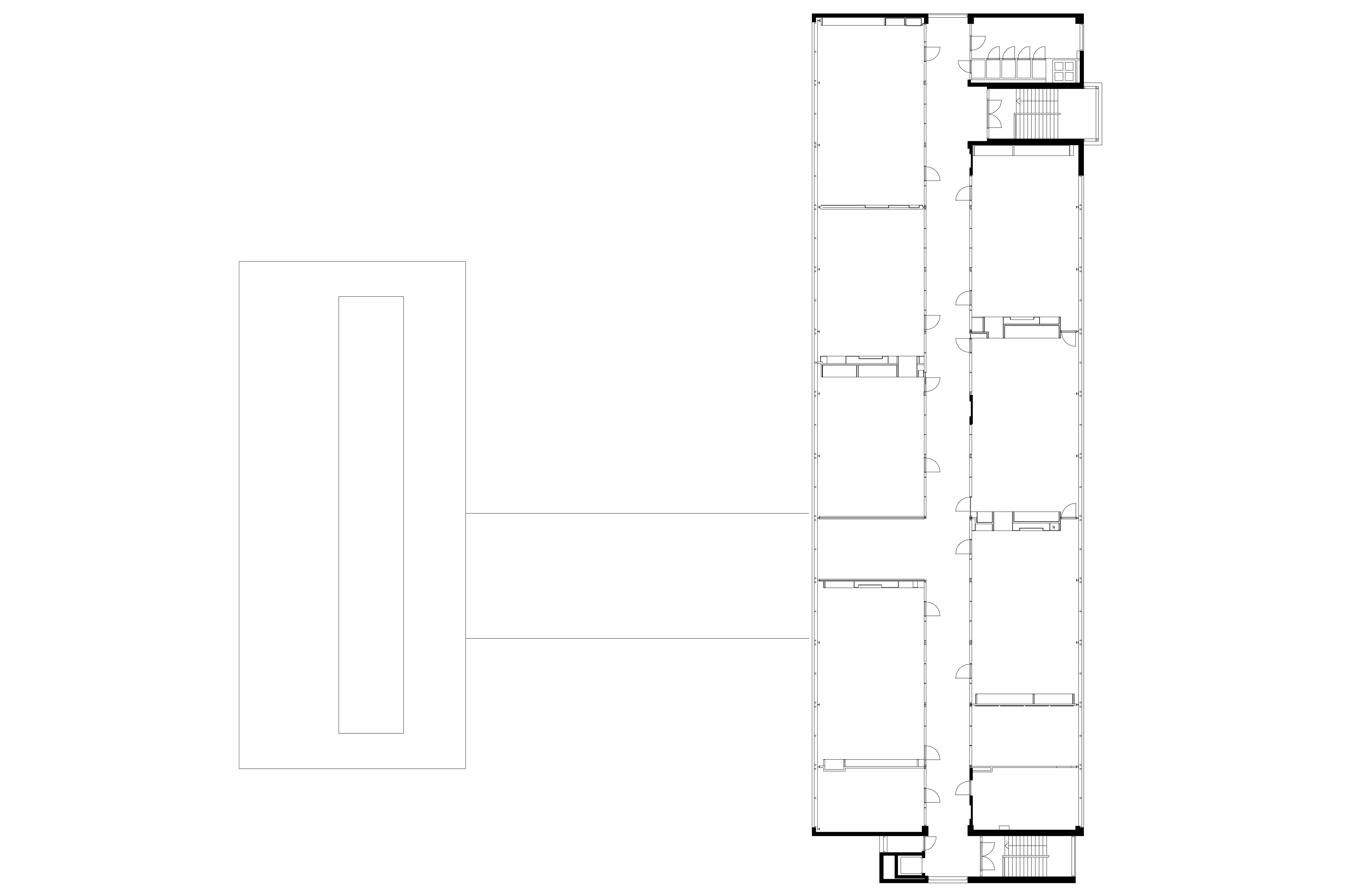
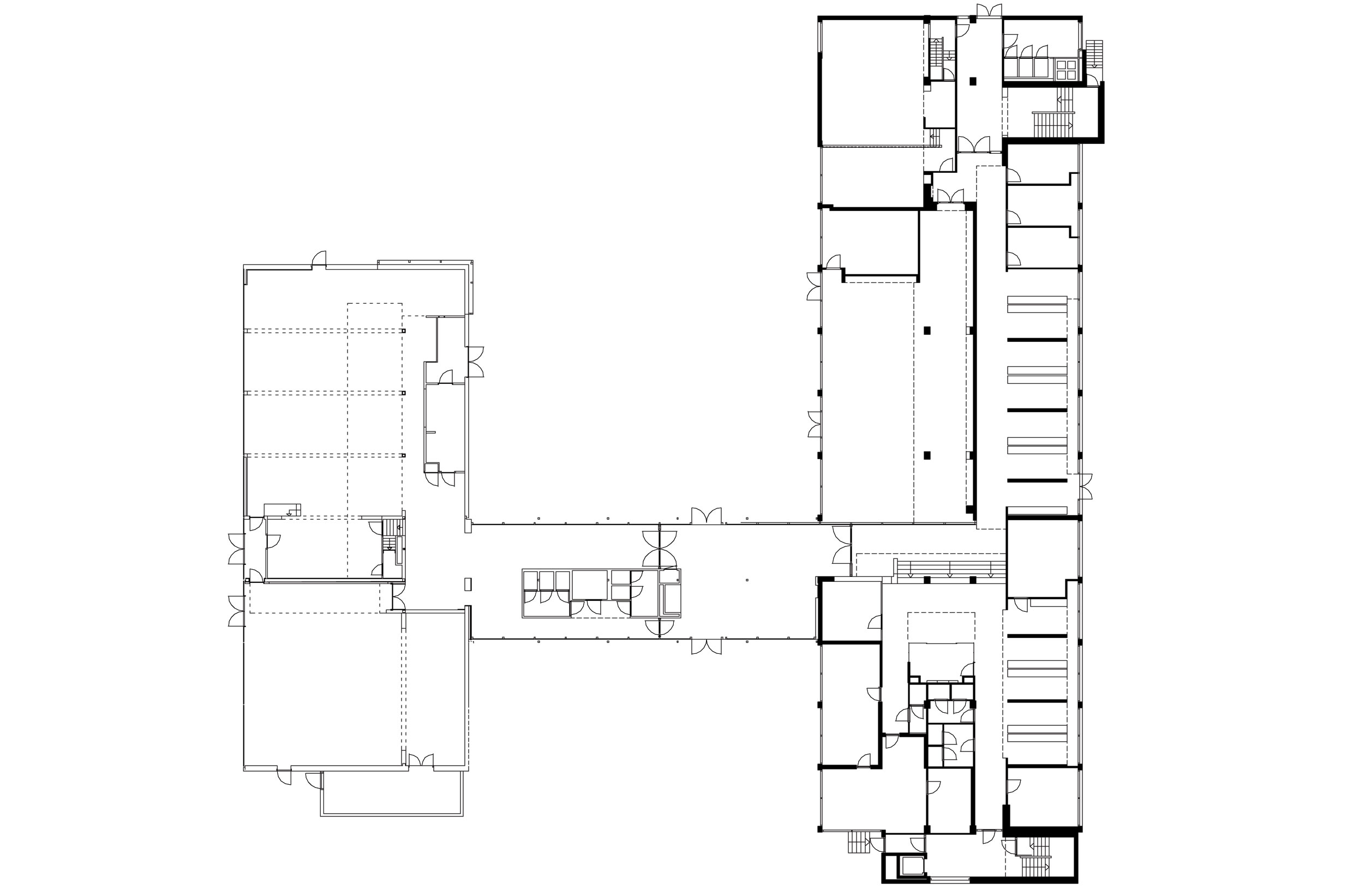
Schoolgebouw Gemeentelijk Gymnasium
2000-2004
Schoolgebouw Gemeentelijk Gymnasium
2000-2004
Schoolgebouw
2000-2004
Verberg tekst
Tekst
1
|