Stadskantoor Terneuzen
1993-1996

 

Stadskantoor Terneuzen
1993-1996

 
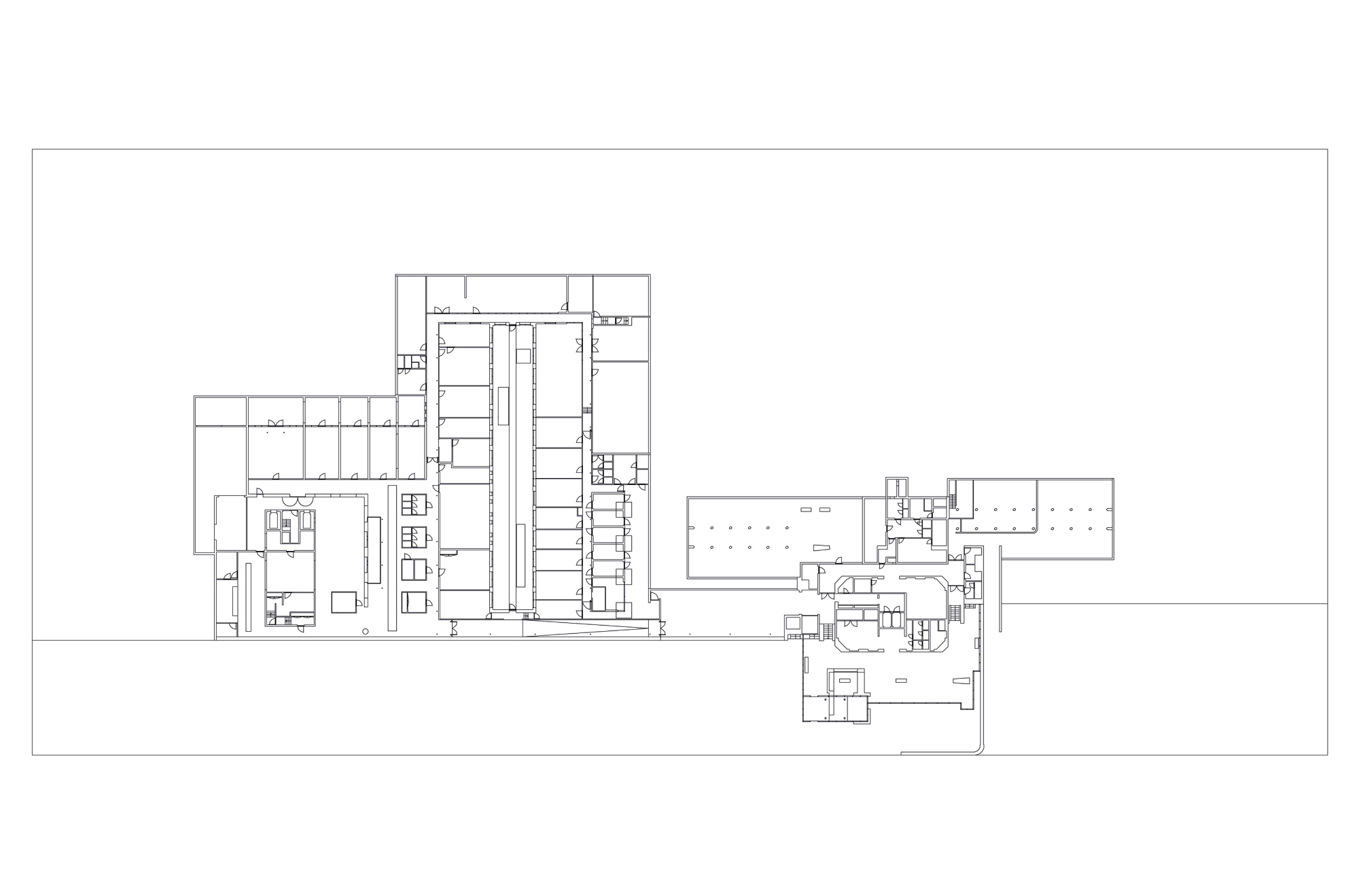
Door de groei van de gemeente Terneuzen was een uitbreiding van het bestaande stadhuis van Van den Broek en Bakema noodzakelijk. Het bestaande stadhuis is een autonoom, alzijdig gebouw en was gesitueerd nabij de Westerschelde zonder dat deze doorgang vanuit de publieke ruimte ervaarbaar was. Het ontwerp van Koen van Velsen architecten voor de uitbreiding van het stadhuis respecteert het monumentale gebouw en maakt de Westerschelde vanuit het centrum weer zichtbaar.

Bovengronds, op gepaste afstand van het bestaande stadhuis, is het stadskantoor met de benodigde extra kantoren gerealiseerd. In de ondergrondse verbinding tussen de twee gebouwen zijn alle benodigde gemeen-
schappelijke voorzieningen gesitueerd. Deze functies zijn in het dijklichaam opgenomen, ontvangen veel daglicht dankzij de ruime patio en bestaan onder meer uit publieksruimten, de postkamer, een restaurant en vergaderruimten. Net als het oude stadhuis spiegelt het stadskantoor zich aan de zeearm waarlangs het gebouwd is. Bij het oude stadhuis gebeurt dit middels de maritieme vorm. Bij de nieuwbouw spreekt de referentie uit de blauw geglazuurde gevelstenen, glanzend en mat afgewisseld in geometrische vlakken. Het imponerende licht aan de oever van Schelde maakt dat de nieuwbouw spiegelt in de felle zon, of – bij bewolkte lucht – lijkt te verdwijnen in het Zeeuwse landschap.
 

Stadskantoor
1993-1996

Extra
1 |