Multiplex bioscoop Schouwburgplein
1992-2016

 

Multiplex bioscoop Schouwburgplein
1992-2016

 
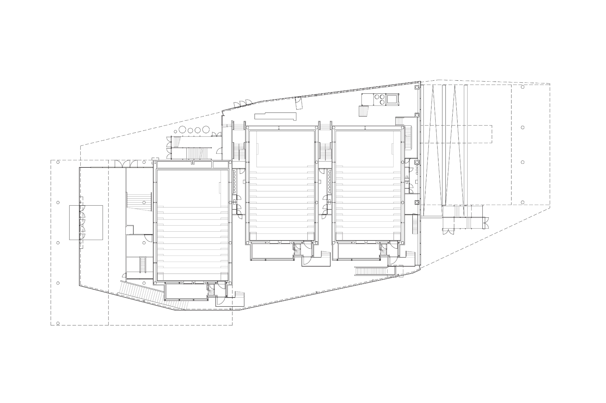
De intentie was om op zo’n centrale plek als het Schouwburgplein in Rotterdam een bioscoop te maken die meer is dan een doos met filmzalen. Namelijk een openbaar gebouw met een betekenis voor de stad en een gebouw dat uitgaan feestelijk maakt. De grote filmzalen worden door middel van kolommen opgetild boven het foyergebied
zodat het Schouwburgplein in de foyer doorloopt. De foyer, van waaruit alle zeven filmzalen te bereiken zijn, vormt het hart van het gebouw en een verlengde van het plein. Ook vormt de foyer het startpunt van de route naar de filmzalen, een ruimtelijke beleving met doorzichten naar de zalen, de foyer en uitzicht over de stad.
 

Multiplex bioscoop
1992-2016

Extra
1 |