Sportcentrum MFC Rozenburg
2012-2016

 

Sportcentrum MFC Rozenburg
2012-2016

 
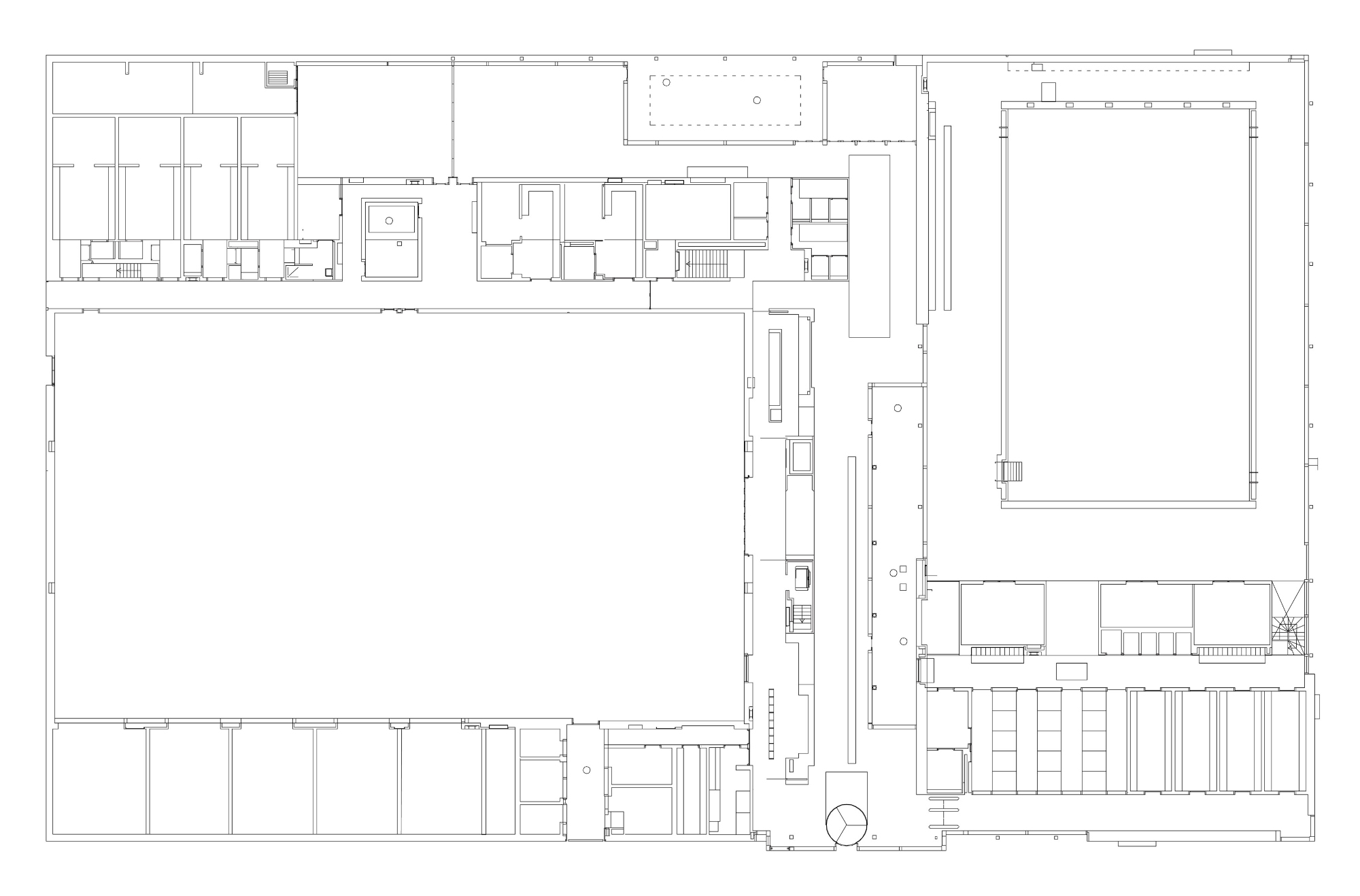
Het sportcentrum is gesitueerd op het overgangsgebied van een bestaande woonwijk naar een groen ontspanningsgebied. Binnen deze context is een waardige markering van de entree van het dorp Rozenburg ontworpen waarbij het alzijdige bouwvolume zorgvuldig is ingepast in het groen. Ondanks het enkellaagse volume heeft elke gevel een eigen gezicht. De hoofdfuncties zijn goed afleesbaar in de gevel waardoor een afwisselend geheel is gecreëerd. De speciaal voor het project ontwikkelde groene gevelsteen sluit aan op de aangrenzende bebouwing en laat het gebouw opgaan in het groen.

Het sportcentrum is vanzelfsprekend en eenvoudig van opzet. De heldere structuur resulteert in een overzichtelijk en eenvoudig te navigeren gebouw,
van en voor zijn vele en diverse gebruikers. Het gebouw bevat onder meer een sporthal met tribune, een zwembad, een multifunctionele zaal, een bar en andere gemeenschappelijke ruimten. Ook de omgeving en de inrichting van het gebouw maken deel uit van de opgave. Bewust is geen icoon ontworpen maar een gebouw waarin de architectuur, de functies, het interieur, het landschap en de buitenruimtes als één samenhangend geheel zijn ontworpen. Dit maakt het sportcentrum tot een ‘opvallend onopvallend’ gebouw.

Het Sportcentrum is door de Bond van Nederlandse Architecten genomineerd voor de award Beste Gebouw van Nederland 2017.

 

Sportcentrum
2012-2016

Extra
1 |