Huis op Zuid sport
2016-2024

 

Huis op Zuid sport
2016-2024

 

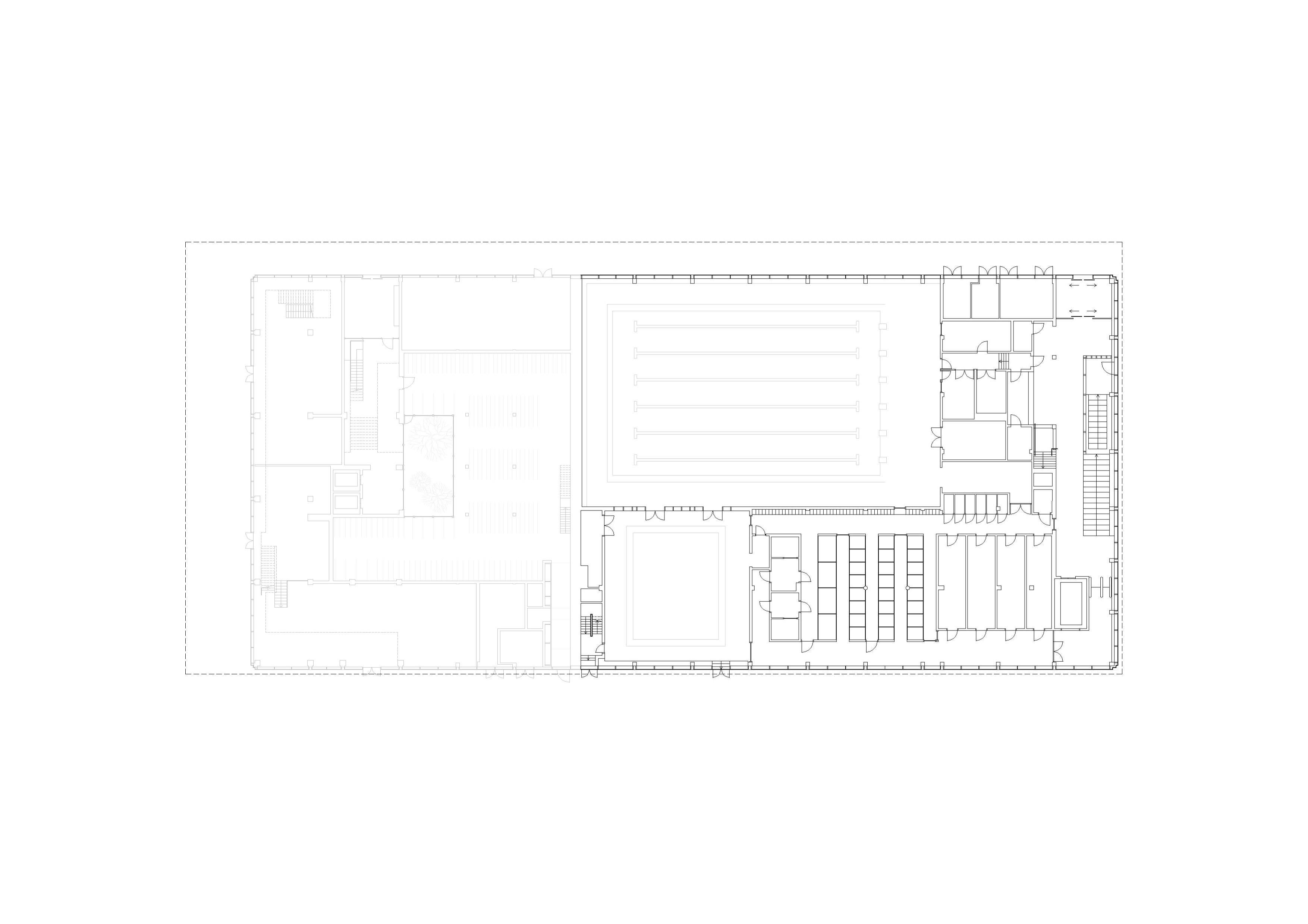
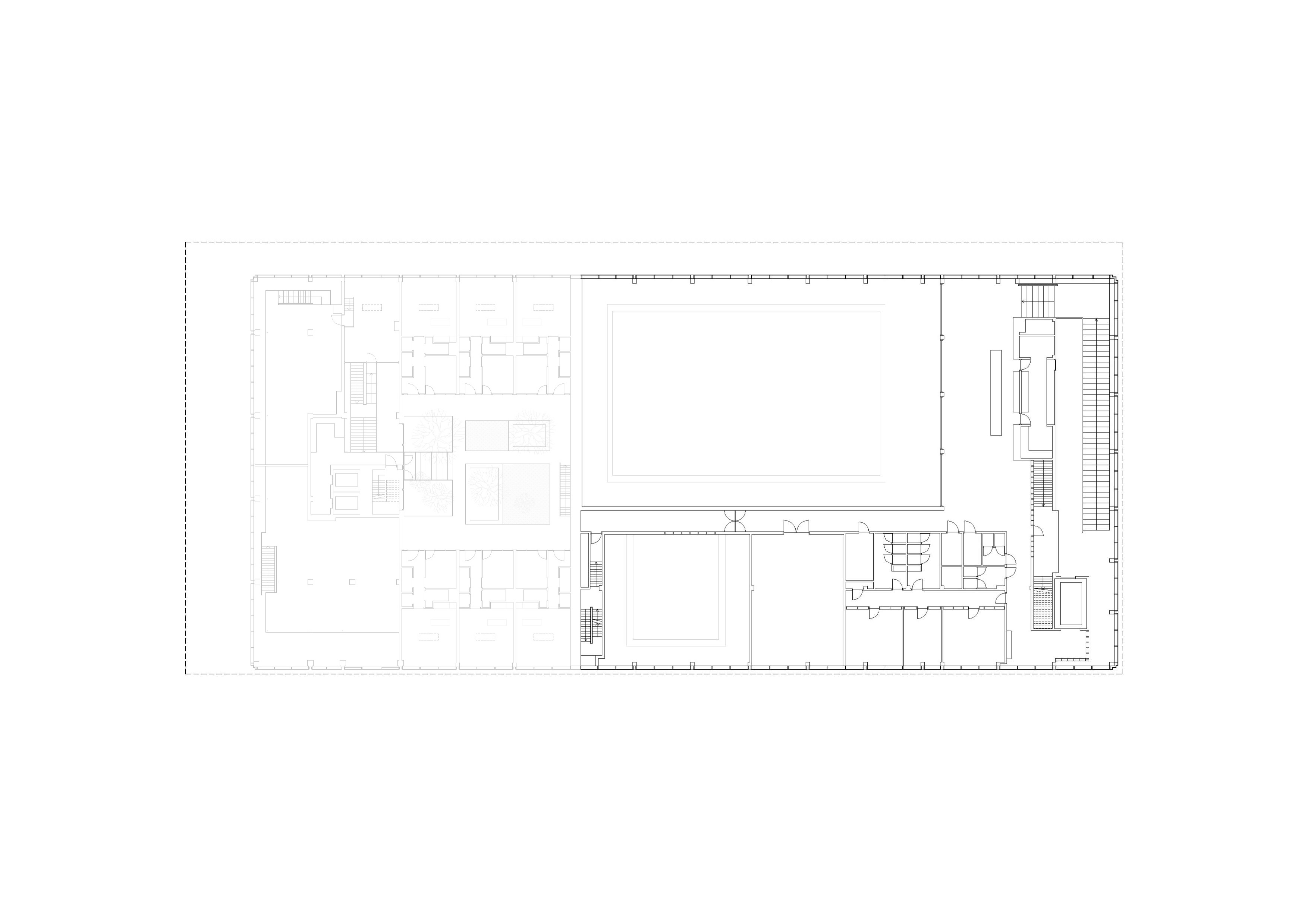
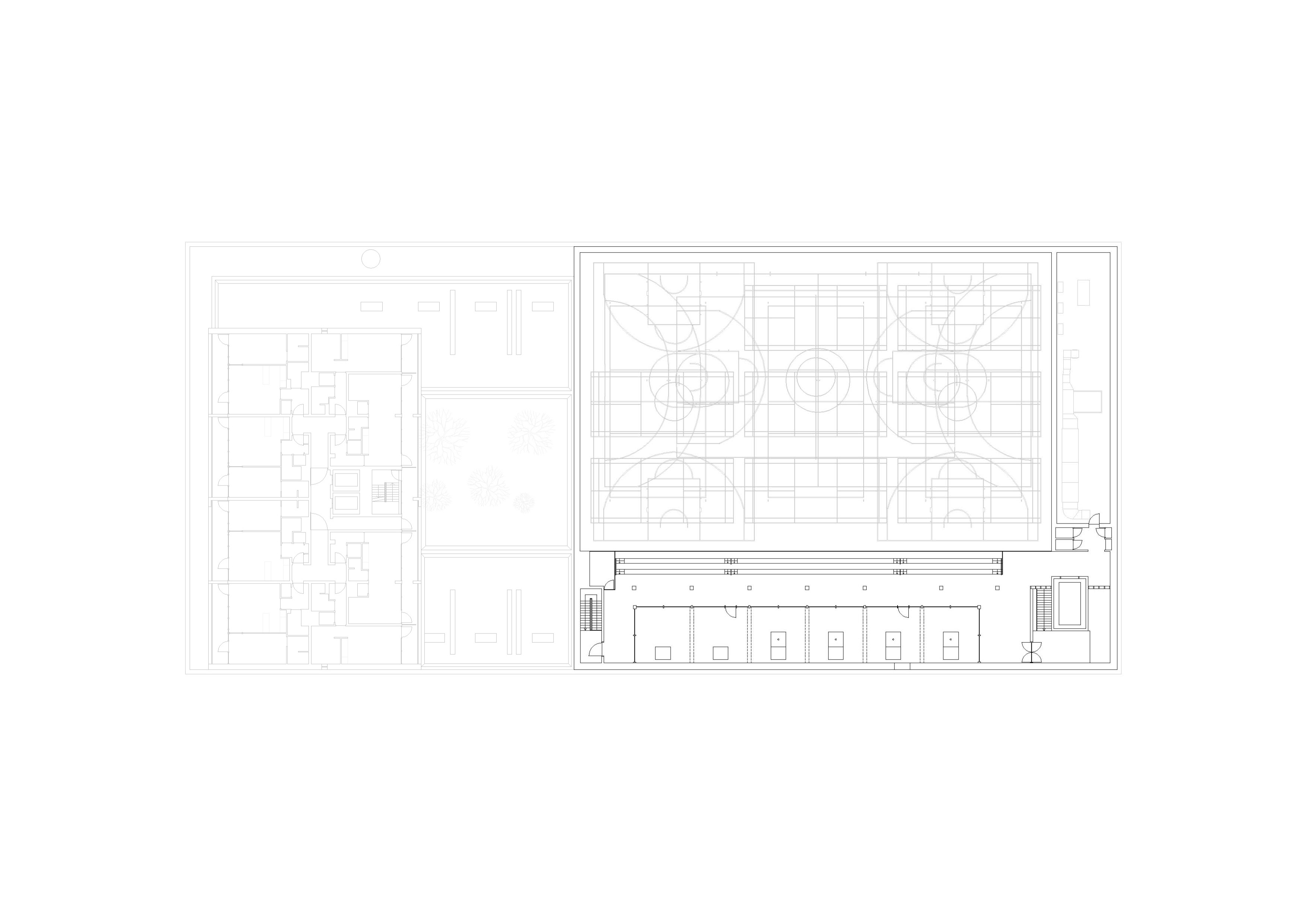
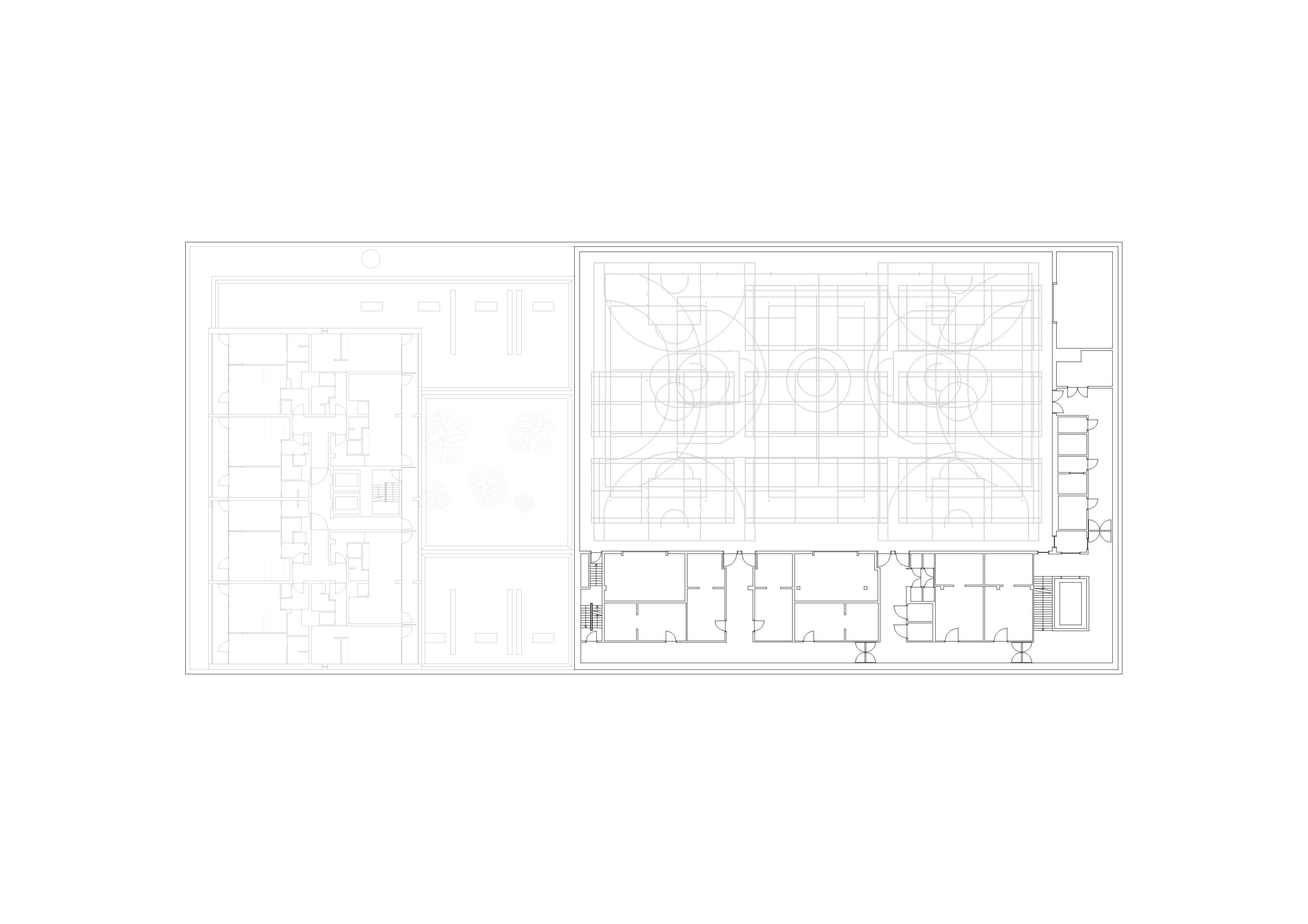
Alle verschillende programma onderdelen van Huis op Zuid krijgen een eigen identiteit binnen een krachtig totaalbeeld. De sporthal, het zwembad en de horeca krijgen elk een eigen sfeer, identiteit en kleuraccenten. De ruimtevorm, uitzichten en lichttoetreding helpen daarbij. Dit draagt bij aan de vind- en herkenbaarheid van de diverse onderdelen. Daarbij krijgt iedere functie een eigen ‘huis’ binnen een groter geheel. De verschillende sportprogramma’s dienen zich daarbij in de gemeenschappelijke hal aan. De sporthal, het zwembad en de horeca zijn met elkaar verbonden maar kunnen ook los van elkaar gebruikt worden.

Huis op Zuid bestaat uit één duidelijk herkenbare en samenhangende sculptuur: ondanks de variëteit aan functies samenhangend van aard en met goede en heldere verhoudingen. De herkenbaarheid wordt verder versterkt door de toepassing van een heldere plint die het hele object omvat. Deze plint vormt een basis voor de verschillende programma onderdelen die daarop zijn geplaatst als sculpturale objecten. Samen maken ze Huis op Zuid tot één geheel. Hierdoor voegt het gebouw zich naar de omgeving en ontstaat tegelijkertijd een verbijzondering in de stad en directe omgeving.

 

Huis op Zuid sport
2016-2024


1 |