Stadsbad Heerlen
2025

 

Stadsbad Heerlen
2025

 

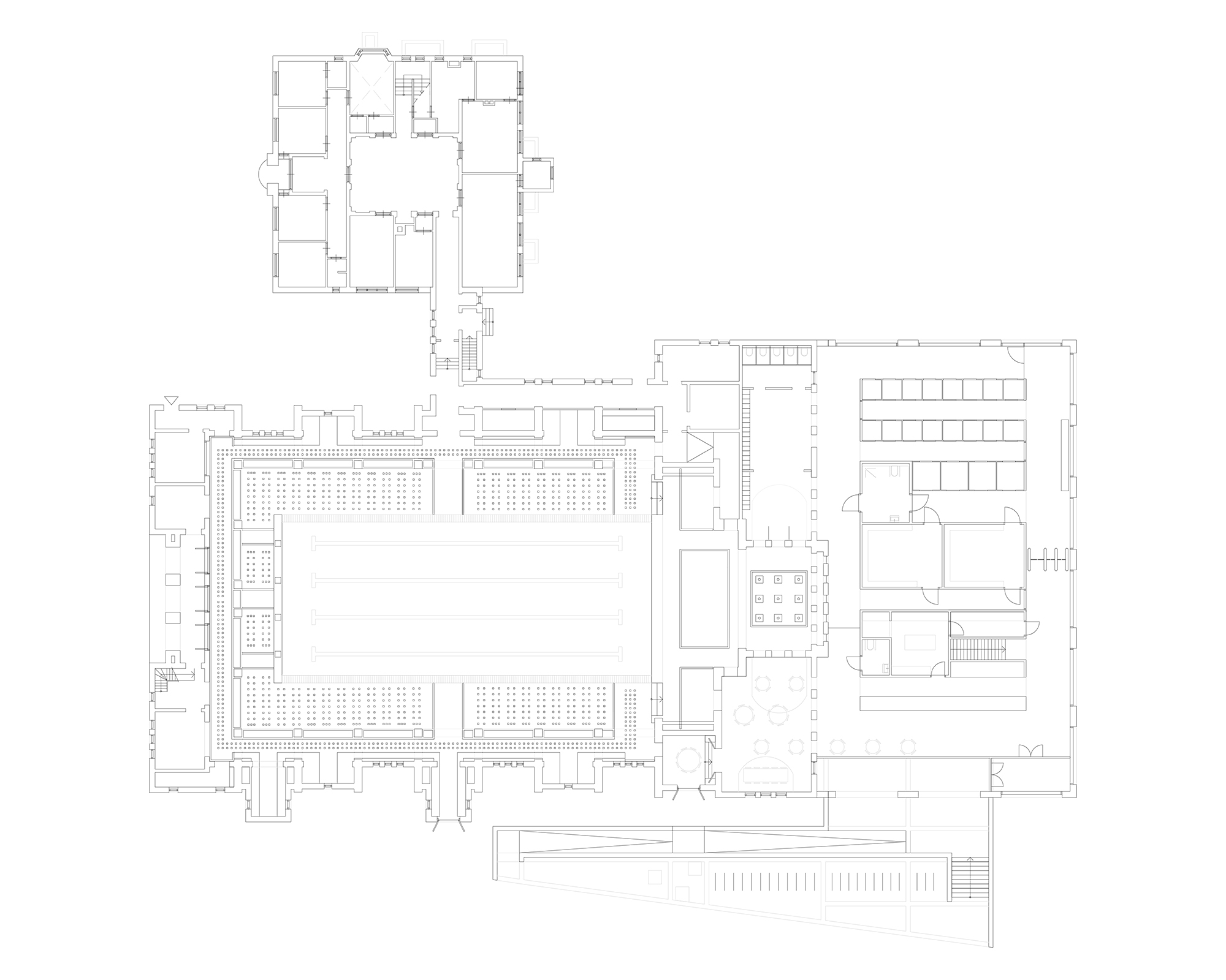
De transformatie van de Franciscus van Assisi-kerk naar stadsbad is een uniek voorbeeld van de wijze waarop religieus erfgoed op innovatieve wijze behouden kan blijven. Het zwembad is zorgvuldig ingepast binnen de bestaande kerk. Het monumentale karakter van de kerk biedt een unieke zwemervaring. Een reeks nieuwe, ruitvormige daklichten bepaalt de sfeer, samen met de expressieve houten spant constructie. Het stadsbad heeft een uitgesproken publiek karakter en sluit aan op de historische functie van de kerk als ontmoetingsplaats.


De entree, centrale entreehal en faciliteiten zijn ondergebracht in een vanzelfsprekende, nieuwe uitbreiding: een eigentijdse interpretatie van het sculpturale karakter van de kerk. De bestaande kapvorm van de transeptarm wordt doorgezet rondom het nieuwe volume, in harmonie met het kerkgebouw. Het alzijdige karakter wordt versterkt door een rondgang met uitzicht op de kloostertuin. De combinatie tussen bestaand en nieuw resulteert in een optimale balans tussen exploitatielasten, duurzaamheid en iconische waarde van het stadsbad.

Het ontwerp is het resultaat van een samenwerking tussen Koen van Velsen architecten en Office Winhov.

 

Stadsbad
2025


1 |