Kantoor Total Design
1988-1989

 

Kantoor Total Design
1988-1989

 
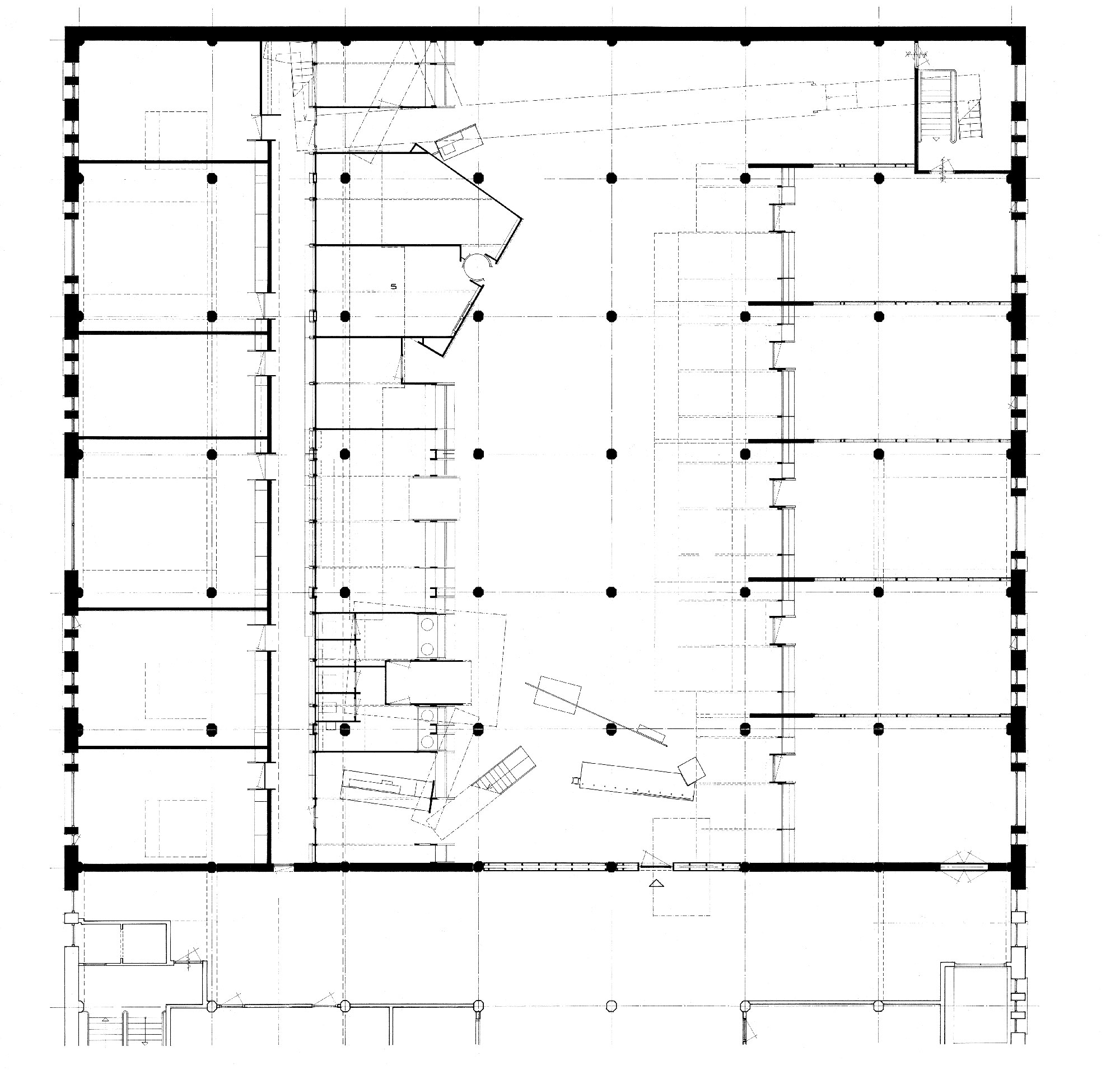
De opgave betrof de verbouwing en inrichting van de bovenste verdieping van een industrieel gebouw. De inrichting was tijdelijk, voor een periode van vijf jaar. Het ontwerp is daarom simpel van opzet en door middel van de toepassing van eenvoudige materialen gerealiseerd.
Het karakteristieke schuine glazen dak met uitzicht over het IJ in Amsterdam is bereikbaar gemaakt. Een nieuwe schuine wand in de ruimte brengt ordening tussen de open ruimte en de gesloten kamers en begeleidt het daglicht tot diep in het interieur.
 

Kantoor
1988-1989


1 |