Appartementengebouw Borneo eiland
1996-1998

 

Appartementengebouw Borneo eiland
1996-1998

 
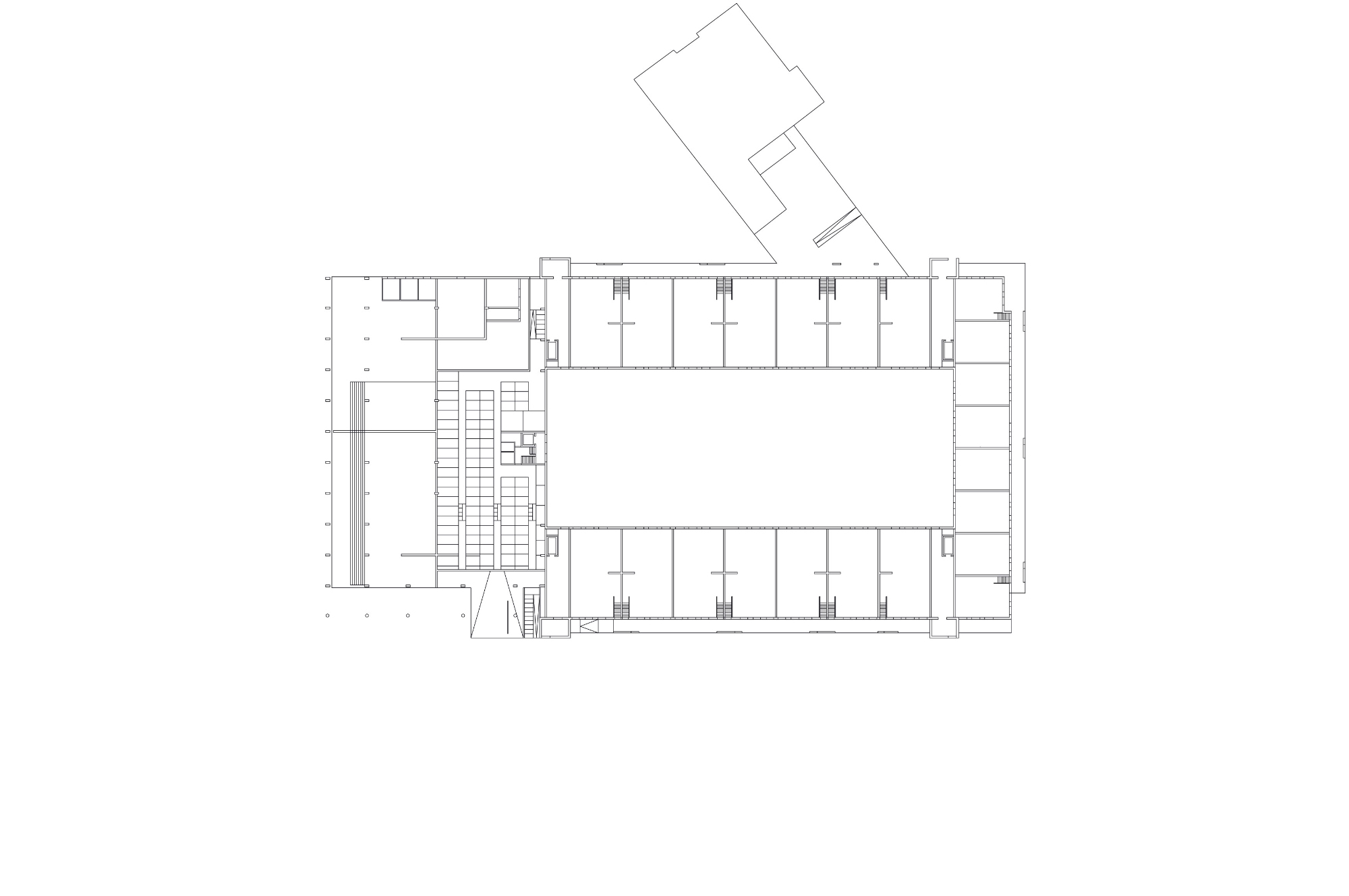
In de zee van donkere laagbouw van Borneo en Sporenburg wilde Koen van Velsen architecten dit grote woongebouw als een cruiseschip laten opdoemen. Het grote volume bevat een verscheidenheid aan gezinsappartementen, variĆ«rend van groot naar klein. De appartementen zijn gegroepeerd rond een afgesloten gemeenschappelijke binnenplaats met daarin een grote eikenboom. De appartementen hebben aan beide zijden een galerij of doorlopend balkon. De balkons kunnen worden benut als private buitenruimte maar kunnen indien 
gewenst ook onderling worden gekoppeld waardoor een gemeenschappelijke semi-private buitenruimte kan worden gecreƫerd.
In het ontwerp is voorzien dat alle appartementen uitsluitend zijn voorzien van (glazen) deuren, en geen ramen, zodat bewoners zelf de in- en uitgang(en) van het appartement kunnen bepalen en hier flexibel mee om kunnen gaan. Ook stelt het bewoners in de gelegenheid om delen van het appartement afzonderlijk te gebruiken. In de realisatiefase zijn het merendeel van de deuren als vast glas uitgevoerd maar het ontwerp is in vorm nog duidelijk zichtbaar.
 

Woongebouw
1996-1998

Extra
1 |