Openbaar vervoer knooppunt Breda
2004-2016

 

Openbaar vervoer knooppunt Breda
2004-2016

 
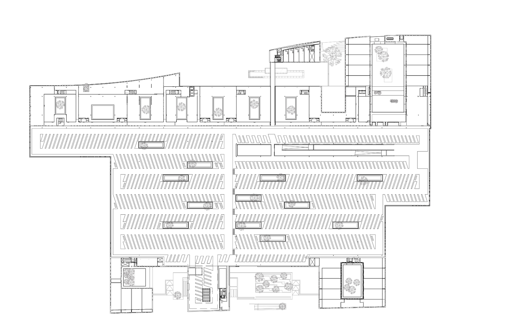
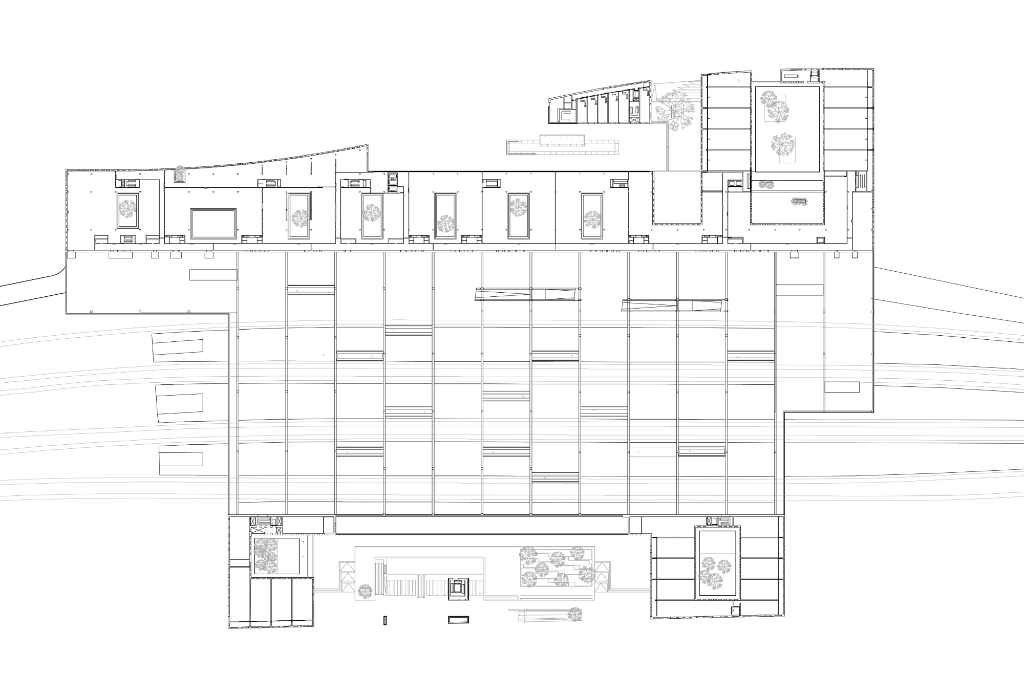
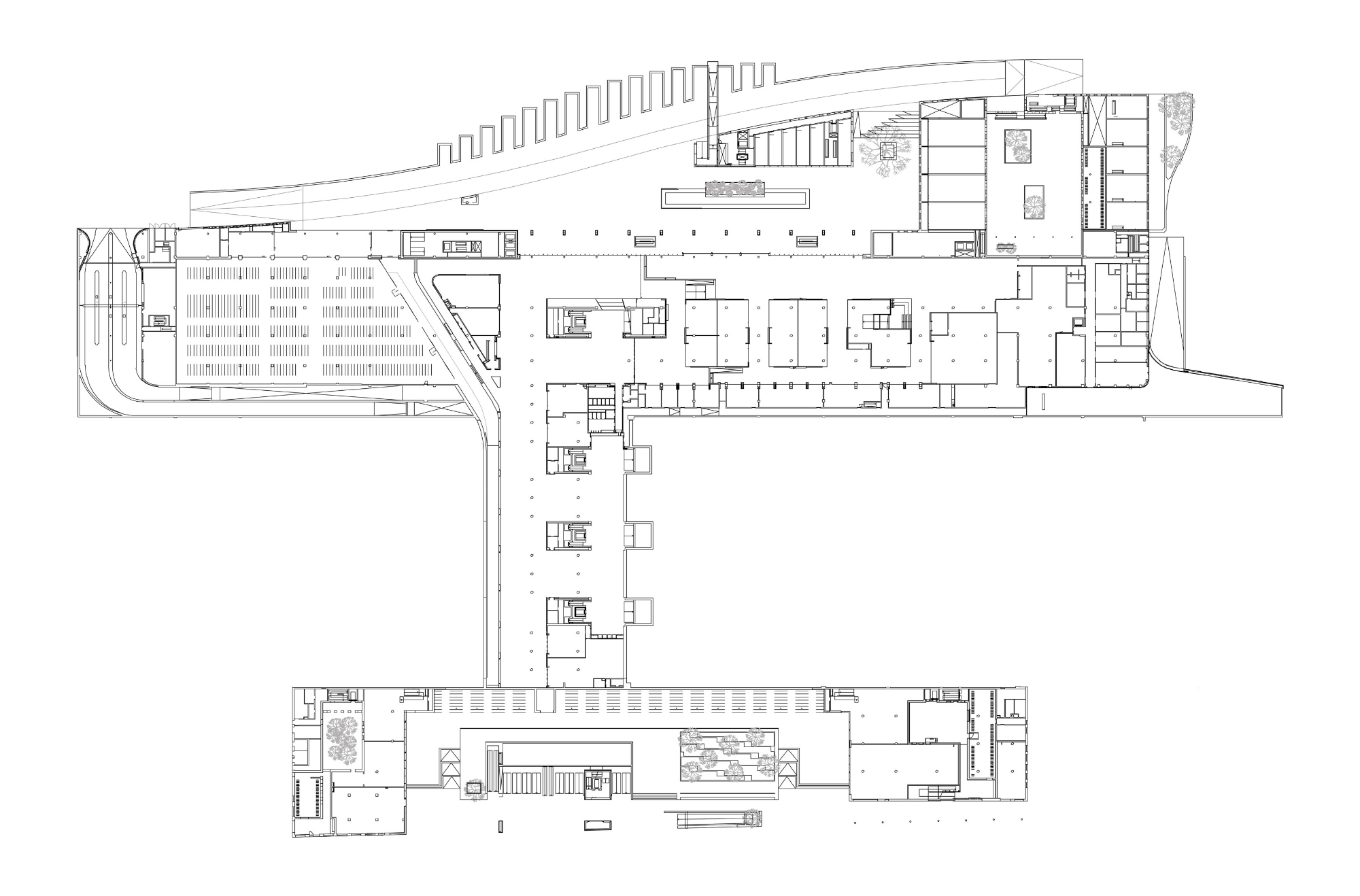
De Openbaar Vervoer Terminal is een ruimtelijk gebouw met een herkenbare identiteit als station, een betekenisvol en vanzelfsprekend oriëntatiepunt in de stad. De OV Terminal bevat naast een bus- en (inter)nationaal treinstation een grote verscheidenheid aan functies zoals onder meer appartementen, kantoorruimte, commerciële ruimten, een parkeerdak, bewaakte en onbewaakte fietsenstallingen en openbare buitenruimten en pleinen. In de benadering van Koen van Velsen architecten is het gebouw niet een multifunctioneel complex met daarin een vervoersknooppunt maar een stationsgebouw waarin een omvangrijk en complex programma op een heldere wijze is samengebracht in één sterke, herkenbare vorm als deel van de stad. Het ontwerp stelt de reiziger centraal. Dit heeft geresulteerd in heldere,
en toegankelijke ruimten met een aangename sfeer, gepaste allure, groot comfort en een optimale beleving. De zichtlijnen en het contact met buiten maken het gebouw overzichtelijk, vergemakkelijken de navigatie en dragen bij aan een gebouw dat nadrukkelijk onderdeel uitmaakt van de omgeving. De Openbaar Vervoer Terminal is het middelpunt van een ambitieuze stedenbouwkundige ontwikkeling waarbij een voormalig industrie- en rangeerterrein wordt omgevormd tot een bruisend nieuw stadskwartier. Het complex is ontworpen als een perfect passend onderdeel van en voor de stad Breda: karaktervol en hecht verwoven met de omliggende bebouwing.

De OV terminal Breda is door de Bond van Nederlandse Architecten verkozen tot Beste Gebouw van het Jaar 2017.



 

OV knooppunt Breda
2004-2016

Extra
1 |