Kantoorgebouw Breda
2004-2016

 

Kantoorgebouw Breda
2004-2016

 
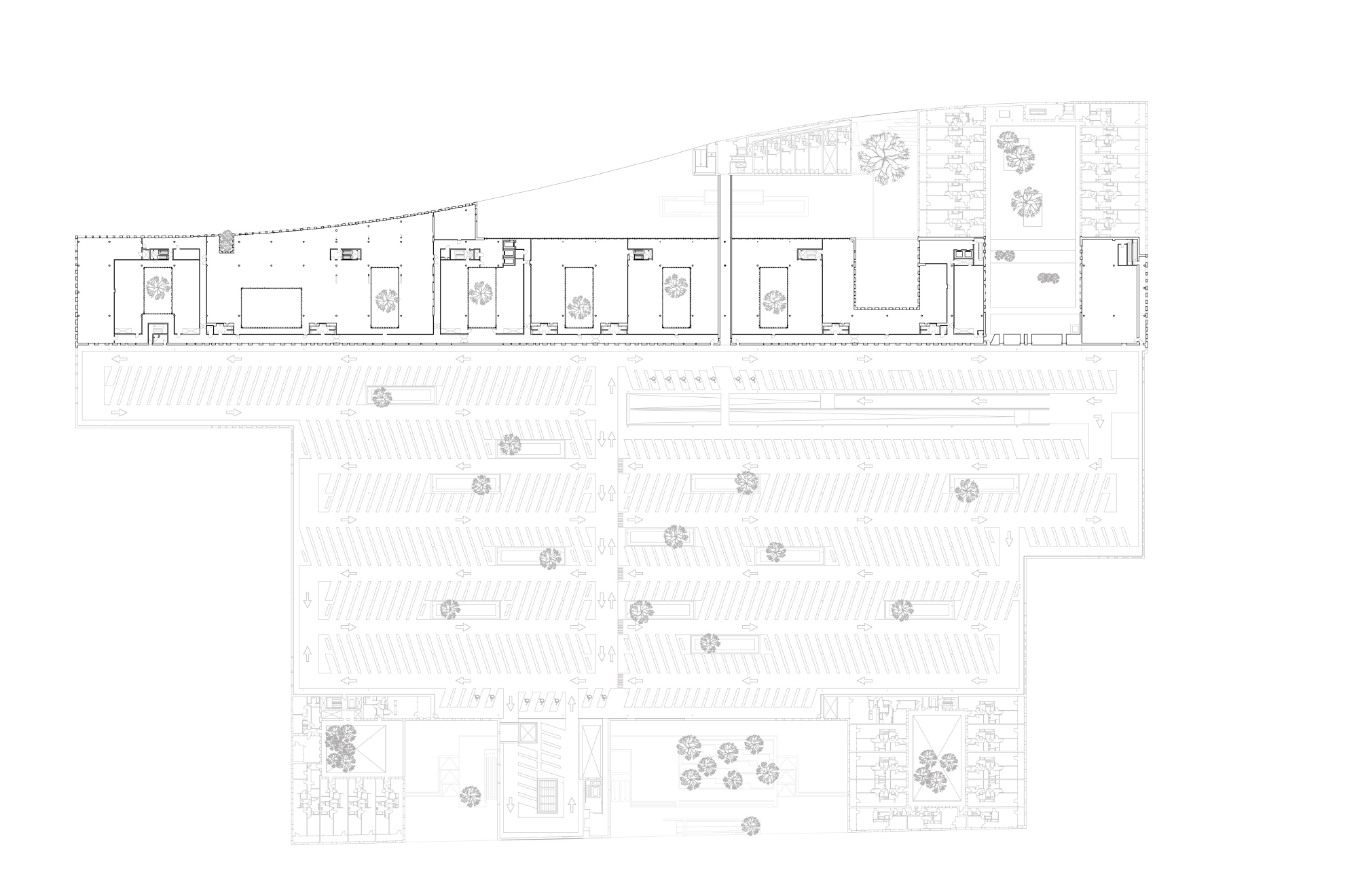
In het stationscomplex van Breda is een uitgebreid en gevarieerd programma opgenomen, waaronder ruim twintigduizend vierkante meter casco kantoorruimte. Boven de bus terminal zijn over de volle lengte van het gebouw over vijf bouwlagen casco ruimtes gerealiseerd die op verschillende manieren ingedeeld kunnen worden. De hoofdontsluiting van de kantoorunits, die langs de direct aan de treinterminal gelegen binnengevel loopt, zorgt voor een bijzondere ruimtelijke relatie met de grote stationshal.

De kantoren zijn georganiseerd rondom een serie lichthoven. De lichthoven zorgen er voor dat de kantoren goed van daglicht en
uitzicht zijn voorzien en maken bijzondere koppelingen tussen de werkvloer en het ondergelegen bus station mogelijk. Ieder lichthof is voorzien van heesters met bijzondere bloesems en (herfst)kleuren. De bomen in de lichthoven zijn een voortzetting van de, voor Breda zo kenmerkende, groene hoofdstructuur. De lichthoven dragen bij aan een prettige werkomgeving. Daarbij bevordert de verscheidenheid aan boomtypen per lichthof de natuurlijke oriƫntatie door het complex.

De OV terminal Breda is door de Bond van Nederlandse Architecten verkozen tot Beste Gebouw van het Jaar 2017.



 

Kantoorgebouw Breda
2004-2016


1 |