Universiteitsmuseum Utrecht
1993-1996

 

Universiteitsmuseum Utrecht
1993-1996

 
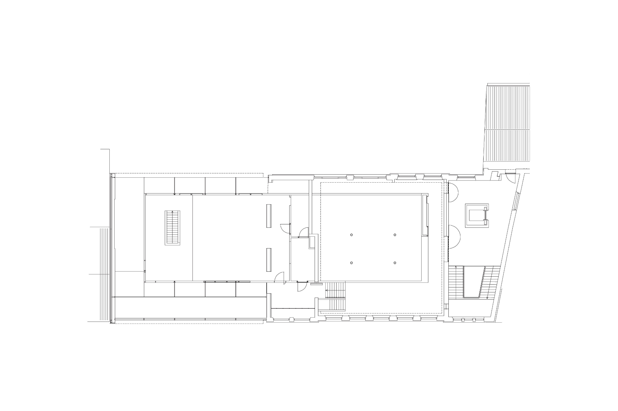
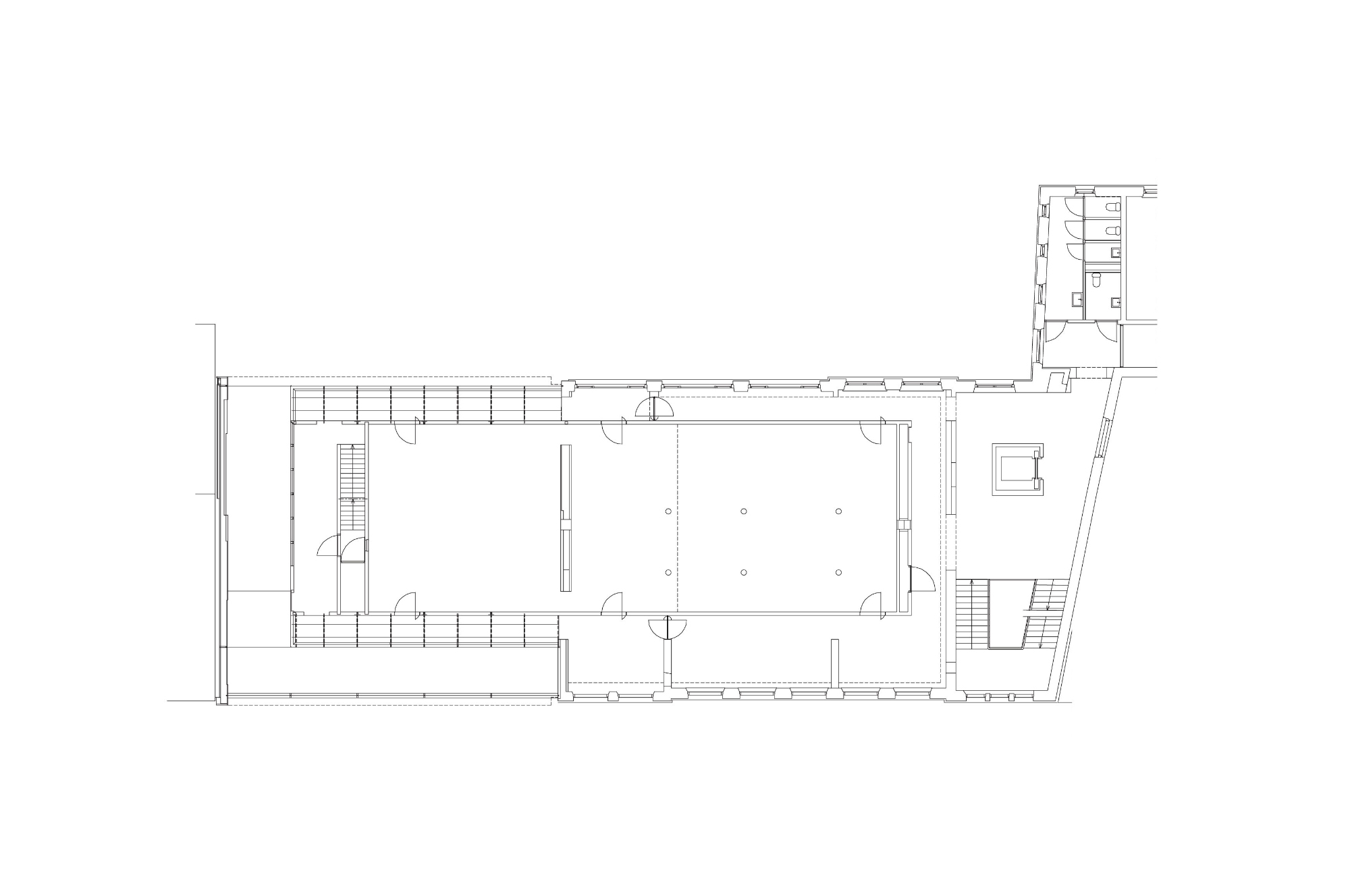
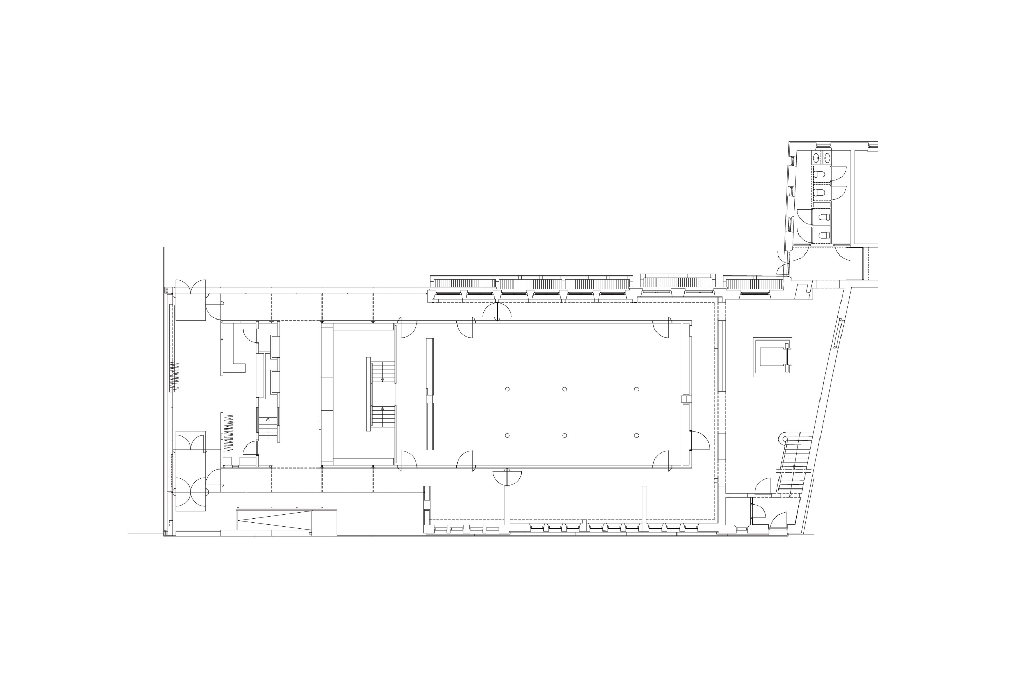
Twee panden aan de Lange Nieuwstraat in de historische binnenstad van Utrecht werden samen het Universiteitsmuseum. Het grootste van de twee gebouwen is gerestaureerd en gerenoveerd en het kleinste gebouw is vervangen door transparante nieuwbouw, bestaande uit een opgetilde gesloten houten doos in een volume met twee gevels van glas. De nieuwbouw is duidelijk herkenbaar, vormt een hedendaagse toevoeging aan de stad en maakt direct zicht mogelijk vanaf de straat op de achterliggende Oude Hortus.

Het Universiteitsmuseum is een publiek gebouw. Binnen bevinden zich een publieksentree, diverse tentoonstellingsruimten, een museumwinkel, een koffieruimte en een garderobe.
De tentoonstellingsruimten bevinden zich in de houten doos en kunnen op maat worden verlicht, verwarmd en bevochtigd. De doos presenteert zich tevens als een interieurelement waarmee nieuwbouw en bestaande bouw met elkaar worden verbonden.

Het Universiteitsmuseum is zowel door de jury als het publiek gekozen tot winnaar van de Rietveldprijs, de tweejaarlijkse architectuurprijs van de stad Utrecht. De jury schreef over het gebouw: “Een doos in een doos, even sober als eclatant en een voorbeeldige liefdevolle overgang van oud naar nieuw. Een gebouw, of constructie, zo men wil, in alle details zó uitgewogen, dat een wandeling er door heen een doorlopend genoegen is.”
 

Universiteitsmuseum
1993-1996


1 |