Busstation Breda
2004-2016

 

Busstation Breda
2004-2016

 
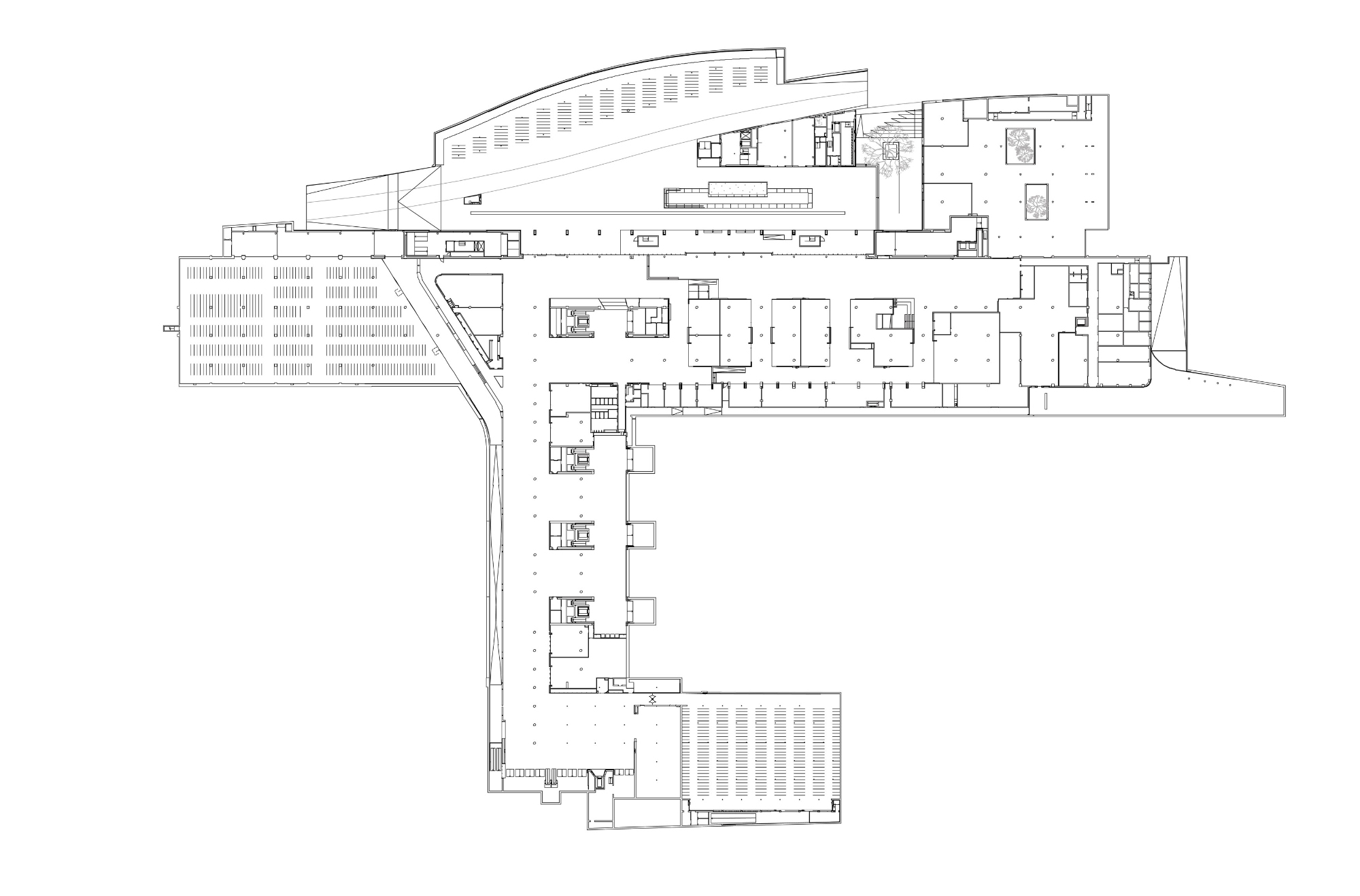
In de Openbaar Vervoer Terminal in Breda zijn alle verschillende modaliteiten van (openbaar) vervoer in één helder en samenhangend complex samengebracht. Dit maakt het complex uniek en een opzienbarend en veelzijdig gebouw.

De bus terminal biedt ruimte aan transfer, verblijf en twintig halteplaatsen ten behoeve van stad- en streekbussen. De bus terminal is gesitueerd in het gebouw, naast de treinperrons in de grote stationshal. Binnen het gebouwcomplex geldt de bus terminal als een volwaardige modaliteit en daarom is de wijze van ontsluiting, de perroninrichting, de ruimtelijke kwaliteit
en het afwerkings- niveau van de bus terminal gelijk aan de trein terminal. Een serie van grote lichthoven zorgen er voor dat de bus terminal goed van daglicht is voorzien, brengt groen in het gebouw en maakt bijzondere koppelingen tussen het bus station en de werkvloeren van de bovengelegen kantoren mogelijk. Grote glazen puien bieden uitzicht op de stad Breda en maken dat de bussen vanuit de stad goed zichtbaar zijn en een voorname aanwezigheid hebben.

De OV terminal Breda is door de Bond van Nederlandse Architecten verkozen tot Beste Gebouw van het Jaar 2017.

 

Busstation
2004-2016


1 |