Fietsenstallingen Breda
2004-2016

 

Fietsenstallingen Breda
2004-2016

 
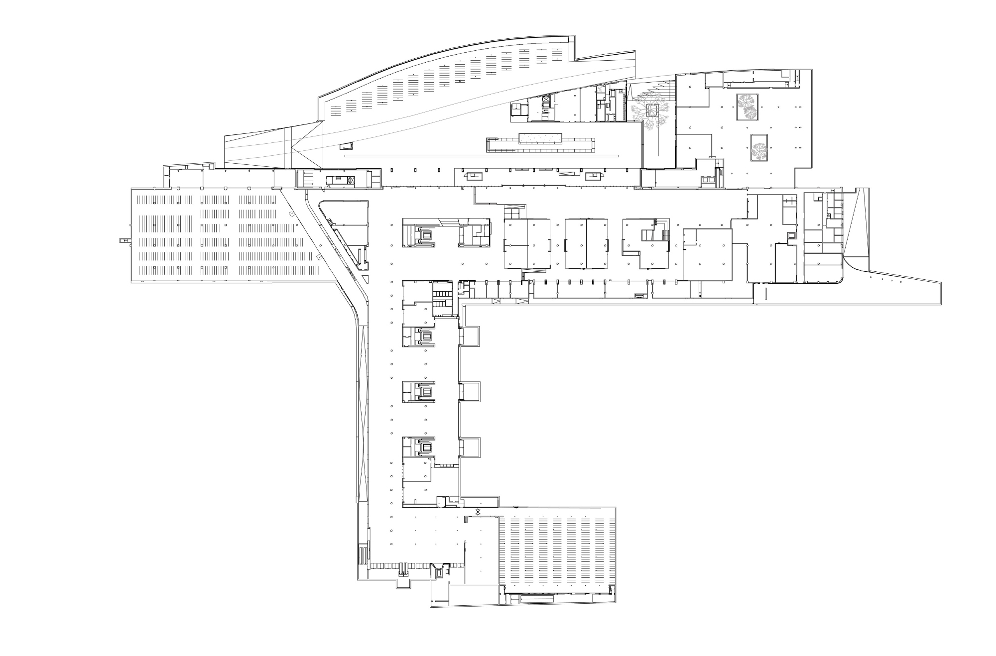
In de Openbaar Vervoer Terminal in Breda zijn alle verschillende modaliteiten van (openbaar) vervoer in één helder en samenhangend complex samengebracht. Dit maakt het complex uniek en een opzienbarend en veelzijdig gebouw.

Het complex biedt ruimte aan de stalling van 5400 fietsen, verdeeld over vier bewaakte en onbewaakte fietsenstallingen. Fietsvervoer is binnen het gebouwcomplex een volwaardige modaliteit en daarom hebben de fietsen- stallingen een  gelijkwaardige  ruimtelijke kwaliteit, vergelijkbaar hoogwaardig afwerkingsniveau
en eenzelfde belangrijkheid als de overige modaliteiten. Zo is de bewaakte fietsenstalling aan de noordzijde van het gebouw door middel van een glazen pui duidelijk zichtbaar vanuit de publiekstransfer. De natuursteen vloer- en wandafwerking lopen vanuit de publieke ruimte door tot in de fietsenstalling waardoor deze door de reizigers als een samenhangend onderdeel van het complex word beleefd.

De OV terminal Breda is door de Bond van Nederlandse Architecten verkozen tot Beste Gebouw van het Jaar 2017.



 

Fietsenstallingen
2004-2016


1 |