Zorgcomplex Glostrup Hospital
2012-2013

 

Zorgcomplex Glostrup Hospital
2012-2013

 
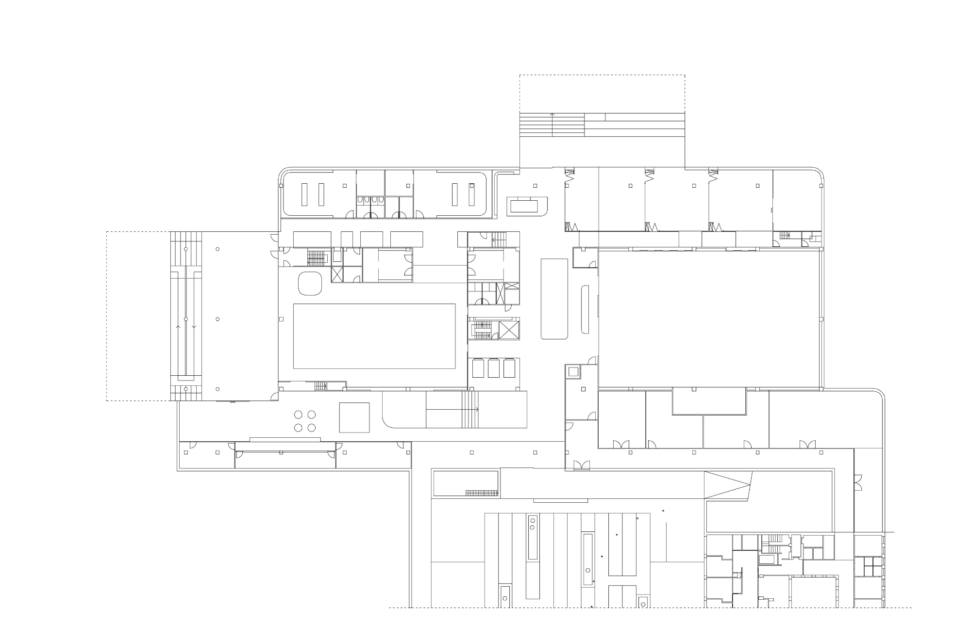
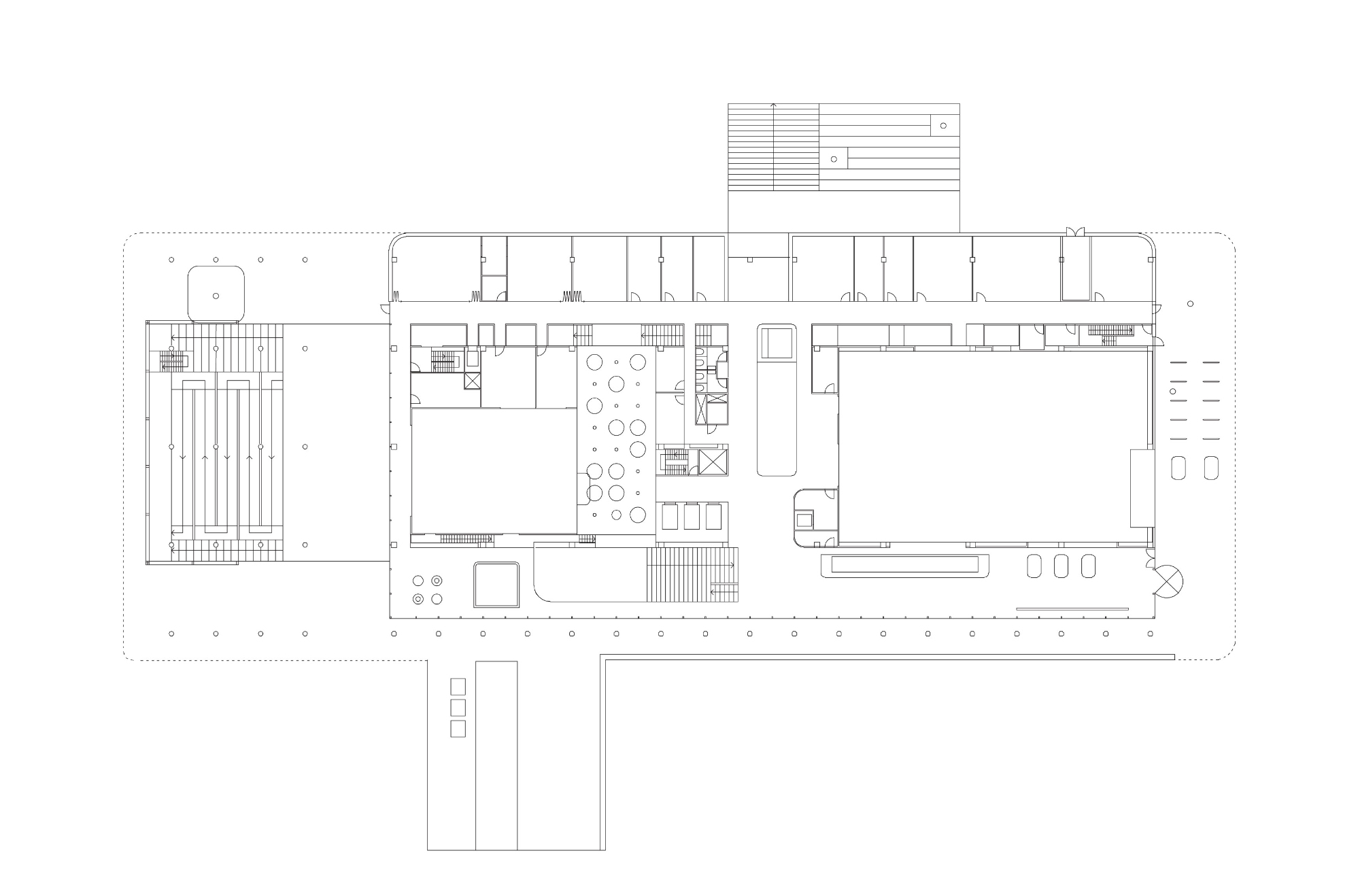
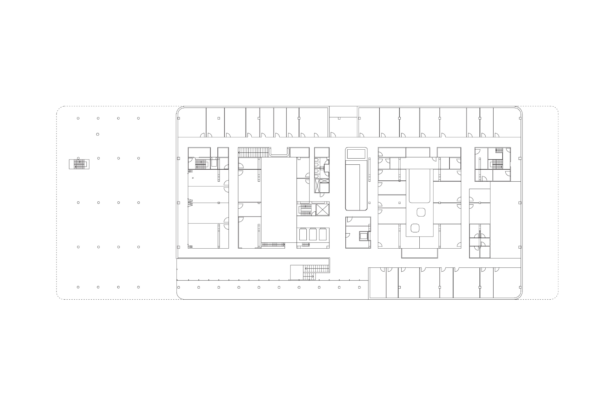
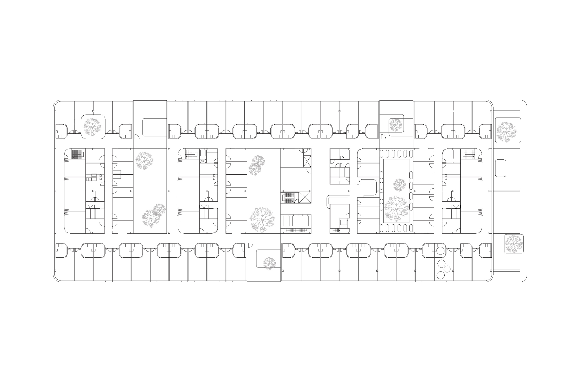
Het zorgcomplex voor Glostrup Hospital in Kopenhagen in Denemarken is compact, eenvoudig van opzet en met een heldere organisatie van functies. De onderste verdiepingen van het gebouw zijn open, transparant en publiekelijk toegankelijk. Hiermee levert het gebouw een echte meerwaarde voor de lokale gemeenschap. Een helder en direct primair circulatie systeem gecombineerd met secundaire looproutes, die de mogelijkheid geven om het gebouw dwalend te verkennen, resulteren in een efficiënt netwerk van routes en een levendig gebouw. Visuele verbindingen in het gebouw tussen de verschillende verdiepingen en functies zorgen voor een open atmosfeer, stimuleren
sociaal contact en bieden uitzicht op de omgeving. In het omringende parklandschap – eveneens ontworpen door Koen van Velsen architecten – worden het openbare karakter van het gebouw en de verbinding met de omgeving extra benadrukt en versterkt. Gebruiksfuncties zijn in het landschap opgenomen, in ‘kamers’ met ieder een eigen sfeer en verblijfskwaliteit. Het landschap heeft aan iedere zijde van het alzijdige gebouw een geheel eigen sfeer. Dit bevordert de oriëntatie en plaatsbepaling in het gebouw. Kunstobjecten in het park kunnen tevens als zitelement worden gebruikt. Hiermee worden het bestaande park, het nieuwe landschap en het gebouw tot één verbonden.
 

Zorgcomplex
2012-2013


1 |