Woonhuis Ros
1982-1983

 

Woonhuis Ros
1982-1983

 
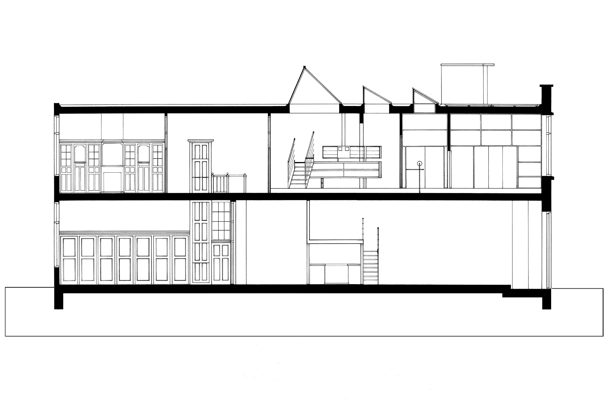
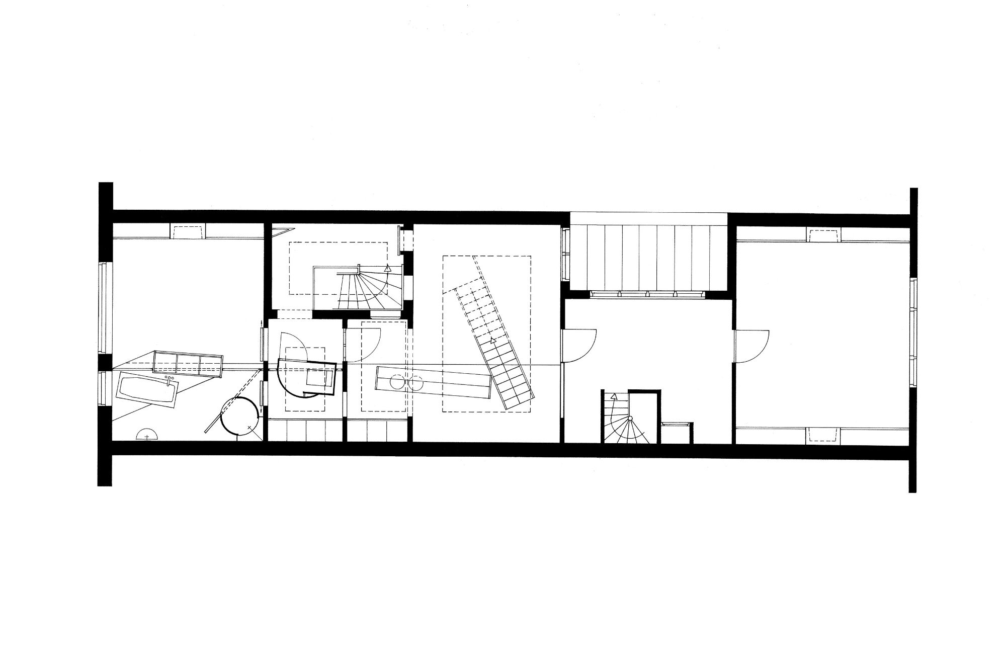
De transformatie van een kantoorgebouw tot een woning is gerealiseerd door het bestaande gebouw te restaureren en daarin een aantal losse elementen te plaatsen. Deze losse elementen bestaan onder meer uit opbergmeubels, de keuken en de badkamer. De maat, vorm en positie in de ruimten van deze elementen en de relatie van de elementen met het bestaande gebouw

resulteren in een ruimtelijke kwaliteit en prettige woonomgeving. Eén van de losse elementen, een nieuwe trap geplaatst in een vide, verbindt de twee verdiepingen en maakt een nieuwe routing mogelijk. Een groot daklicht zorgt voor daglicht tot diep in het hart van de woning en maakt toegang tot een terras op het dak mogelijk.
 

Woonhuis Ros
1982-1983


1 |