Woonstudio van Velsen
1982-1983

 

Woonstudio van Velsen
1982-1983

 
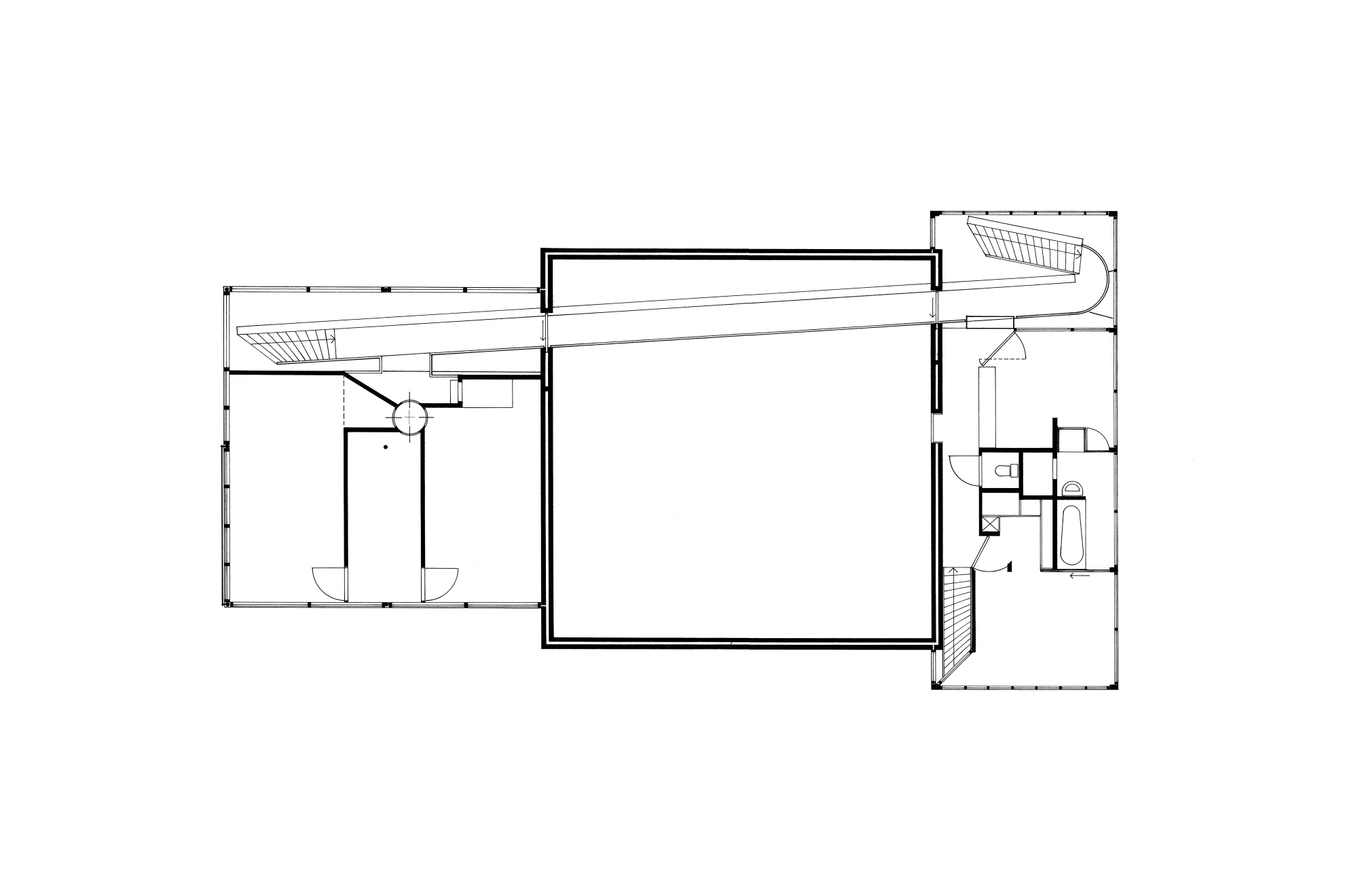
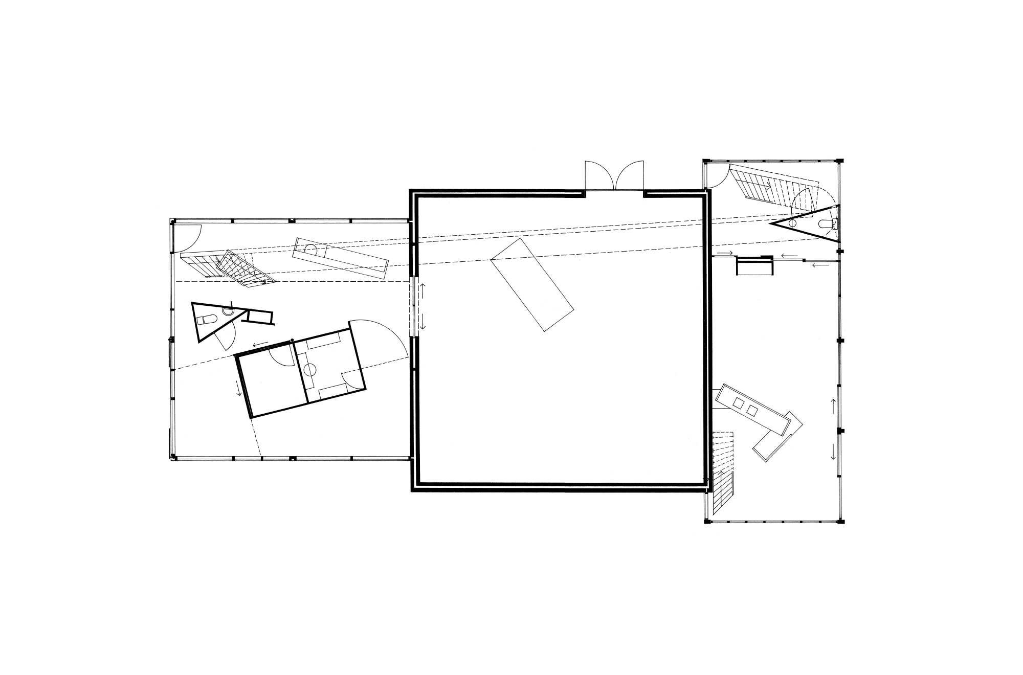
Dit woonhuis met studio bestaat uit een kantoor, studio en woonhuis, die zijn ondergebracht in drie volumes, met een trap en een brug als verbinding. De gevels zijn van verschillende materialen, die contrasteren met hun omgeving.
Het woonhuis, dat aan de zijde van het bos ligt, is – om het verschil te benadrukken – bekleed met aluminium; de studio aan de straatkant is daarom juist met hout. Daartussen ligt als een stenen buffer het kantoor.
 

Woonstudio
1982-1983


1 |