Woonhuis en praktijk de Haas
1977-1978

 

Woonhuis en praktijk de Haas
1977-1978

 
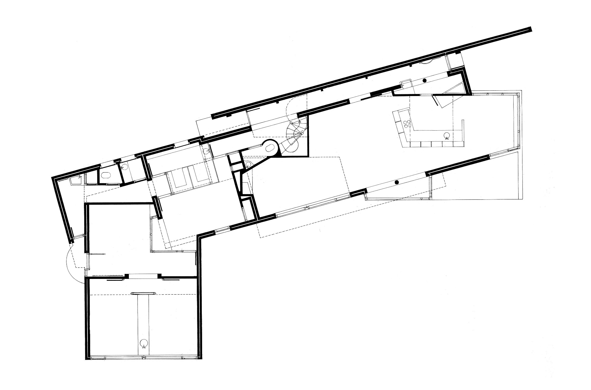
Wat begon met een opdracht voor een open haard, werd een woning met dierenartsenpraktijk. Het streven om de woning te laten schuilen achter de praktijkruimte is hier gestalte gegeven. 
De praktijk staat aan de straat, de woning ligt er schuin achter, zodat de voordeur nog net zichtbaar is vanaf de straat. De twee volumes vormen samen een beschutting van de zonnige tuin.
 

Woonhuis | praktijk
1977-1978


1 |